
🔥 Would you like to save this?
Specifications
- Sq. Ft.: 2,098
- Bedrooms: 4
- Bathrooms: 2.5
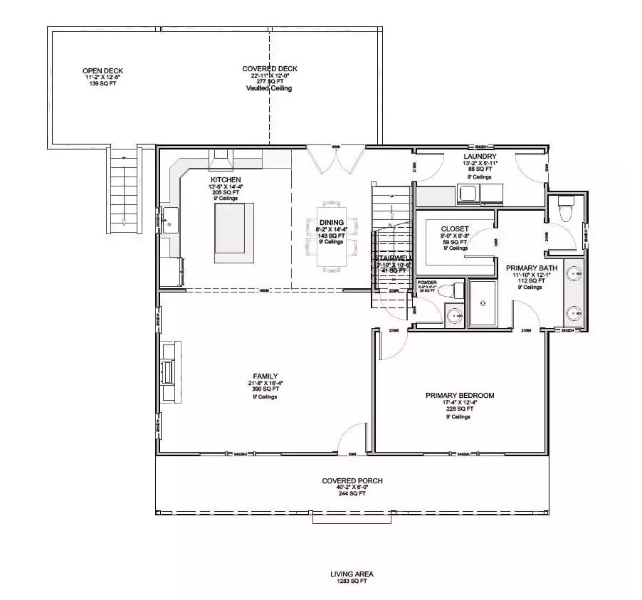
Floor Plan

In order to come up with the very specific design ideas, we create most designs with the assistance of state-of-the-art AI interior design software. Also, assume links that take you off the site are affiliate links such as links to Amazon. this means we may earn a commission if you buy something.
The upper level holds four bedrooms, a shared bath, hall, stairwell, and attic access points on both sides, totaling 815 square feet of living area.
Floor Plan

The main floor includes a primary suite, a family room, a kitchen, a dining area, a laundry room, and a covered porch.
Try This: Consider extending the closet wall slightly to create a pocket door entry between the primary bedroom and bath. This small adjustment adds privacy without sacrificing square footage. A pocket door also keeps the 9-foot ceiling sightlines clean and uninterrupted.
Brick Fireplace and Layered Seating Define a Lived-In Family Room
Red garland draped across a wood mantel signals that this room gets actually used, not just decorated.
Light gray recliners face a brick fireplace topped with a flat-screen TV. Hardwood floors anchor a colorful, distressed rug beneath the seating arrangement. Windows on two walls pull in natural light, and a ceiling fan with wood-tone blades keeps air moving year-round.
Teal Kitchen Island Anchors an Open Layout with White Cabinetry

Bold teal cabinetry on the island contrasts with white shaker cabinets lining the perimeter walls. Marble-look countertops sit above gray upholstered barstools. Glass pendant lights hang overhead. Subway tile backsplash, light hardwood flooring, and stainless steel appliances complete a kitchen built for daily use.
Trend Alert: Two-tone kitchen cabinetry has moved well beyond accent islands painted in navy or forest green. Teal and turquoise are gaining ground as bold but livable choices that work especially well against white perimeter cabinets and warm wood flooring. The contrast reads as playful without sacrificing a clean, organized feel.
Colorful Bedding Pops Against White Walls and Warm Wood Floors

Pink and teal patchwork bedding draws focus in a white room. A distressed teal ladder shelf and wood-topped bench add contrast and texture.
Style Tip: Repurposed architectural pieces like old doors or window frames work well as bedroom shelving when finished in a color already present in the room’s textiles. Matching the shelf color to bedding or pillow tones pulls an eclectic mix together without requiring a full redesign.
Mint Walls and Marble Counters Bring Softness to a Double-Sink Bath

Mint green walls pair with marble countertops, white cabinetry, crystal knobs, and oil-rubbed bronze fixtures across a double vanity.
Common Mistake: Mounting two separate mirrors above a double vanity instead of one large mirror is a common oversight. Individual mirrors allow each sink area to function independently and leave wall space for artwork or a sconce between them. Skipping that gap often makes the vanity wall feel crowded rather than composed.
Upstairs, the layout opens into a dedicated play space that keeps activity separate from the main living areas below.
Carpeted Bonus Room Doubles as a Play Space with Stair Access

Soft gray carpet covers a wide-open room with toys scattered along both walls. A wood-railed staircase with iron balusters connects directly to the floor below.
Transition: Bonus rooms used as play spaces tend to accumulate toys fast. Built-in cubbies or low shelving along one wall keeps floor space clear while giving kids a consistent place to return items. Even one dedicated storage wall can reduce clutter noticeably without limiting how the room gets used day to day.
Covered Deck Frames Mountain Views with Cedar Posts and a Ceiling Fan

Brown composite decking, cedar support posts, black metal railings, and a five-chair dining set face rolling hills and bare winter trees.
Pin It

Outside, a gray farmhouse exterior pairs board-and-batten siding with wood porch columns and a covered front entry. Below, the floor plan reveals 1,283 square feet of living area on the main level, including a primary suite, open kitchen and family room, laundry, and access to both a covered deck and open deck at the rear.
