
🔥 Would you like to save this?
Specifications
- Sq. Ft.: 2,987
- Bedrooms: 2-5
- Bathrooms: 2.5-4.5
- Stories: 1
- Garage: 3
[su_spacer]
In order to come up with the very specific design ideas, we create most designs with the assistance of state-of-the-art AI interior design software. Also, assume links that take you off the site are affiliate links such as links to Amazon. this means we may earn a commission if you buy something.
Main Level Floor Plan

Bonus Level Floor Plan

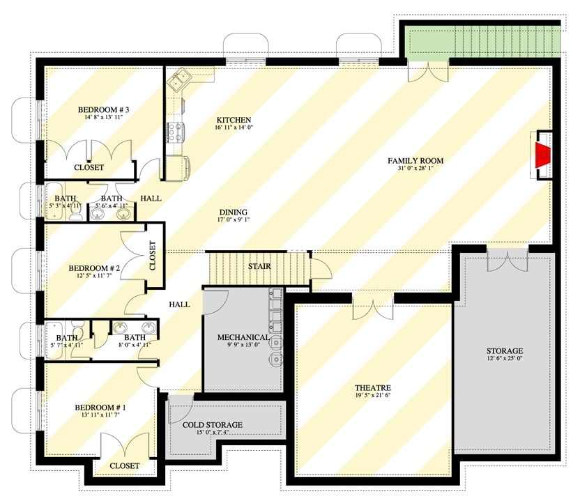
Lower Level Floor Plan
[su_spacer]
Front-Right View

Rear-Right View

Rear View

Rear-Left View

Front-Left View

Front View

Family Room

Family Room

Kitchen and Dining Area

Dining Area

Kitchen
Primary Bedroom

Primary Bedroom

Office

Theater

Theater

Family Room

Dining Area and Kitchen

Dining Area and Kitchen

Playroom

Playroom

Front Elevation
Right Elevation

Left Elevation

Rear Elevation

[su_spacer]
Details
This 2,987-square-foot Craftsman home offers a generous layout with up to five bedrooms, four and a half bathrooms, and a front-entry three-car garage providing 735 square feet of functional storage and utility space. A covered front porch leads into a welcoming foyer, where a private den creates a quiet, flexible space ideal for a home office or library.
The main living area is designed for effortless flow, connecting the kitchen and breakfast nook through an open layout supported by a walk-in butler’s pantry that adds both storage and prep space. The primary suite is located on the main floor within a split-bedroom wing, ensuring privacy and comfort away from the additional bedrooms. Everyday practicality is built in with a dedicated mudroom and main-level laundry positioned near the garage for smooth daily transitions.
On the exterior, classic stone details and multiple gables give the home a timeless Craftsman character that blends naturally with its surroundings and supports outdoor living at the rear. Upstairs, a 466-square-foot bonus room offers flexible expansion, while the optional 3,336-square-foot lower level provides extensive potential for guest suites, a recreation area, or other custom living spaces.
[su_spacer]
Pin It!

Architectural Designs Plan 61714UT
