
🔥 Would you like to save this?
Specifications
- Sq. Ft.: 1,064
- Bedrooms: 2
- Bathrooms: 2
Floor Plan

In order to come up with the very specific design ideas, we create most designs with the assistance of state-of-the-art AI interior design software. Also, assume links that take you off the site are affiliate links such as links to Amazon. this means we may earn a commission if you buy something.
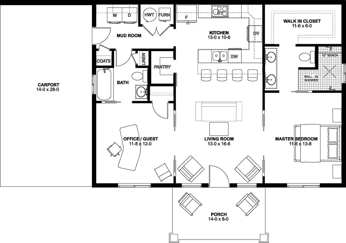
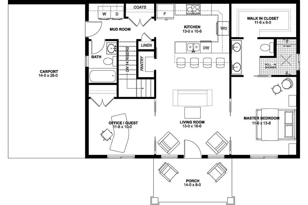
Single-level layout features a master suite with a roll-in shower, an open kitchen and living area, plus a flexible office/guest room off the front porch.
Floor Plan

The layout puts the living room and kitchen at the center, flanked by a master suite with a roll-in shower and a walk-in closet on one side and a mudroom with laundry on the other. A front porch and office/guest room round it out.
Floor Plan
The alternate master bath pairs a double-vanity wall with a toilet and tub, while the walk-in closet sits directly above at 11’6″ x 7’6″.
Symmetry Does the Heavy Lifting in This Sun-Drenched Sitting Room

Two matching armchairs flanking a glass-panel door is a move that just works.
Light pours through the sidelights and casts a grid pattern across the hardwood floor. Green door trim grounds the warm cream walls without fighting them. The ceiling fan sits centered overhead, keeping things practical without drawing attention to itself.
Gold Pendants and Marble Surfaces Set the Tone in This Kitchen

Three globe pendants in aged brass anchor the island, which pairs a waterfall marble edge with a brass faucet. Open wood shelves display stacked plates and glassware. White tulip-style stools keep the seating light against all that warm stone.
Color Story: Warm cream tones run from the upper cabinets down through the island stone, creating a palette that reads as cohesive without feeling matchy. The veining in the marble backsplash introduces just enough movement to break the stillness. Brass finishes on the faucet and pendant hardware are the detail that ties it together.
Barn Door, Brown Leather, and Borrowed Sunlight Make This Living Room Work

Sun patches stretch across bamboo-tone flooring while brown sofas anchor the seating area without crowding it. The sliding barn door behind adds texture to the otherwise neutral walls don’t have. Open sightlines run straight to the kitchen, so the two spaces feel connected without losing their individual purpose.
Pro Tip: Open-plan living looks effortless until furniture placement ruins it. Keeping your sofa backs low enough to maintain visual sightlines between zones helps the space read as larger and keeps traffic flow intuitive for anyone moving between rooms.
Botanical Prints and Geometric Wallpaper Pull Off an Unlikely Pairing

Patterned wallpaper covers the entire accent wall behind the bed, bold enough to anchor the room without competing with the three botanical prints hung across it. Warm wood flooring keeps it grounded.
Worth Knowing: Accent walls work best when they run floor to ceiling on a single wall rather than wrapping corners. Stopping the pattern at a natural boundary, like where the wall meets a plain return, keeps the room from feeling visually crowded.
Brass Fixtures and Botanical Wallpaper Make a Strong Case for Pattern in Small Bathrooms

Square subway tile in the walk-in shower pairs with brass hardware that reappears on the vanity pulls and pendant frames. The floral wall mural gets room to breathe because everything else stays quiet.
- Pick one surface to carry the pattern and keep the rest neutral
- Brushed brass reads warmer than chrome under incandescent light
- A built-in bench earns its place in any shower larger than 36 inches wide
Murphy Bed Disguised as Cabinetry Keeps This Dining Room Doing Double Duty

Blonde wood panel doors blend the Murphy bed into the wall so cleanly it reads as built-in storage. Paired with a round dining table and chairs with olive cushions, the room pulls off two functions without feeling cramped. Geometric wallpaper stops at the corner, letting the accent wall do its job without overwhelming the space.
Budget Tip: Murphy beds have come a long way from clunky hardware and visible hinges. Many newer wall bed systems use the same materials as standard cabinetry, so you can have one installed and most guests won’t realize it folds down until you tell them. It’s one of the more cost-effective ways to get a true guest room without building an addition.
Patterned Backsplash and a Black Steel Door Make This Laundry Room Hard to Forget

Bold graphic wallpaper behind the GE front-loaders does the decorating work here. Butcher block countertop keeps things grounded, and the black-framed door pulls the whole scheme together.
Did You Know: Front-loading washers use considerably less water per cycle than top-loaders because the drum tumbles clothes through a smaller pool rather than submerging them. That efficiency adds up fast in a household doing multiple loads each week.
Pin It

Exterior rendering shows a craftsman farmhouse with covered porch and carport, paired with a floor plan featuring two bedrooms, mudroom, and open kitchen-living layout.
