
🔥 Would you like to save this?
Specifications
- Sq. Ft.: 1,876
- Bedrooms: 4
- Bathrooms: 3
- Stories: 2
[su_spacer]
In order to come up with the very specific design ideas, we create most designs with the assistance of state-of-the-art AI interior design software. Also, assume links that take you off the site are affiliate links such as links to Amazon. this means we may earn a commission if you buy something.
Main Level Floor Plan

Second Level Floor Plan

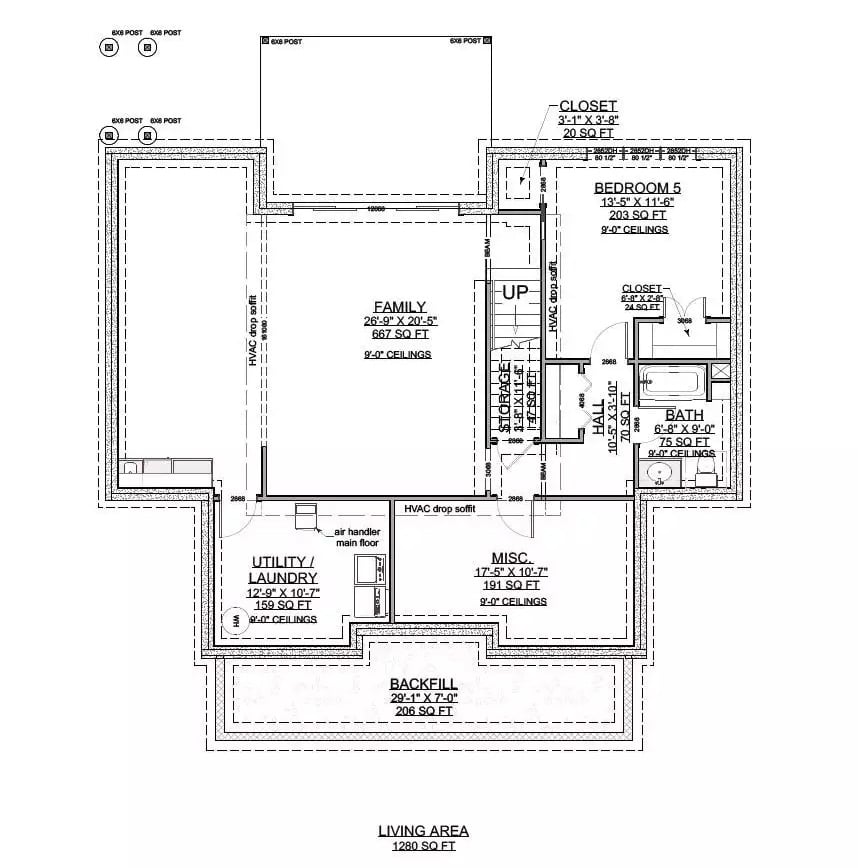
Lower Level Floor Plan
[su_spacer]
Front-Right View

Front-Left View

Rear-Right View

Rear View

Rear-Left View

Living Room

Living Room

Kitchen and Dining Area

Kitchen

Dining Area

Primary Bedroom
Primary Bedroom

Primary Bathroom

Laundry Room

Front Porch

[su_spacer]
Details
This country home features a classic two-story exterior with steep gables, clean siding, and a deep covered front porch that gives it a solid, traditional presence. The balanced façade and simple detailing emphasize function while maintaining a timeless look.
The main level is designed around a central living space with vaulted ceilings that create a strong sense of openness and connection. The living room flows naturally into the dining area and kitchen, forming a practical layout for everyday living and gatherings.
A study near the entry provides a quiet workspace, while a secondary bedroom and full bathroom on this level add flexibility for guests or main-level living. The primary bedroom is also located on this floor and includes an en suite bathroom and dedicated closet space, keeping daily routines efficient and contained.
The upper level is dedicated to private sleeping quarters, with two additional bedrooms connected by a shared bathroom.
The lower level adds additional living flexibility with a large family room that can serve as a casual gathering space, recreation area, or media room. This level also includes another bedroom, a full bathroom, and multiple utility and storage areas that keep functional spaces well organized and separate from the main living areas.
Pin It!

The House Designers Plan THD-11721
