
🔥 Would you like to save this?
Specifications
- Sq. Ft.: 767
- Bedrooms: 2
- Bathrooms: 1.5
Floor Plan

In order to come up with the very specific design ideas, we create most designs with the assistance of state-of-the-art AI interior design software. Also, assume links that take you off the site are affiliate links such as links to Amazon. this means we may earn a commission if you buy something.
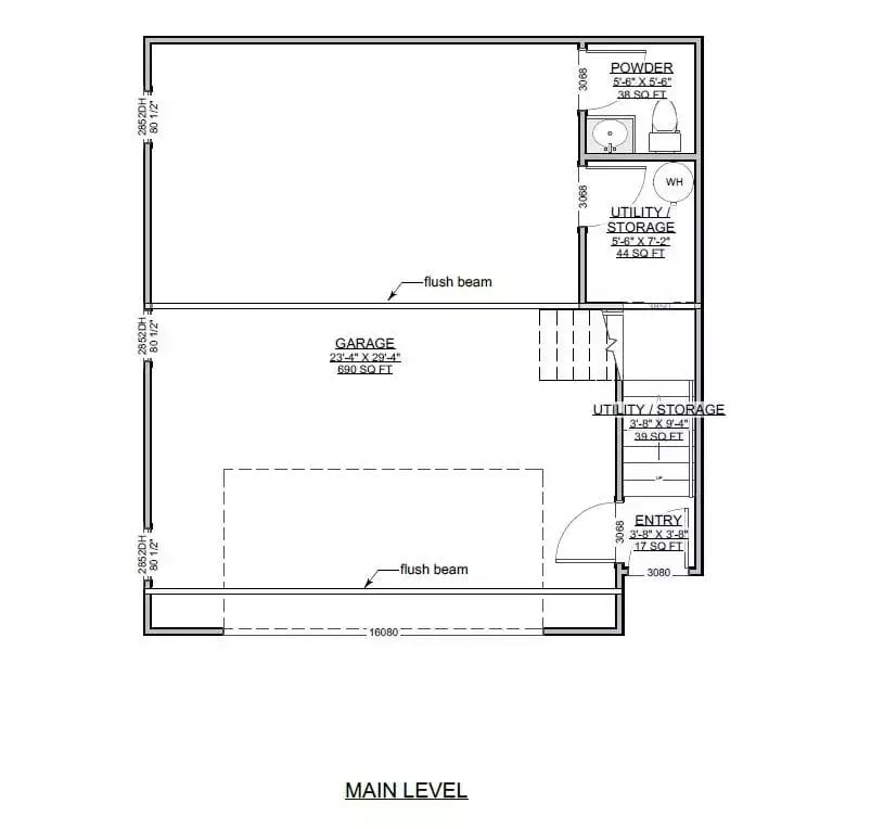
The main level centers on a 690 sq ft garage with two flush beams spanning the width. A small entry leads to stairs, with utility storage on both sides of the stairwell. The powder room and a second utility space sit tucked neatly in the upper right corner.
Floor Plan

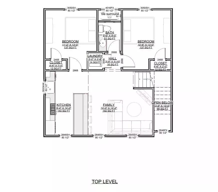
Upper level splits into two equal 137 sq ft bedrooms flanking a central bath and laundry. Below, the kitchen and family room share an open space. Each bedroom has its own closet, and stairs connect down to the main entry.
Warm Autumn Light and an Island Built for Gathering
Open-plan living and kitchen share light from three black-framed windows framing fall foliage outside. A long marble island seats five on wood stools. Earth-toned sectional pillows and a draped throw pull warmth from the stone countertop without trying too hard.
Marble Island as the Room’s Anchor
That island is doing serious work. It stretches far enough to seat a full crowd, and the veining on the stone surface reads more like raw concrete than polished luxury, which keeps it from feeling precious. Paired with those simple backless wood stools, it’s approachable rather than showroom-stiff.
Marble Island, Wood Stools, and Hexagon Tile That Earns Its Place

Four wood stools pull up to a waterfall-edge island with marble countertops. Sage hexagon backsplash tile frames the range hood and window, grounding the white cabinetry without overwhelming it.
History Corner: Country-style kitchens trace their roots to farmhouse working spaces of 18th-century rural America, where the kitchen was the home’s central gathering room rather than a separate service area. The open island layout seen here echoes that tradition of making the kitchen a social hub. Gold hardware on white shaker cabinets reflects a modern interpretation that’s been popular in residential design since the early 2010s.
Warm-Toned Living Room Where Natural Light Does the Heavy Lifting

Taupe sectional, rattan ottoman, and autumn views through black-framed windows anchor this relaxed space.
Budget Tip: Ceiling fans with a wood-toned or black finish tend to blend into the room better than brushed nickel in country-style spaces. Swapping out a builder-grade fan is one of the more affordable upgrades that changes how a room feels day to day. Look for models with reversible motor settings to cut heating costs in winter.
Warm Wood Bed Frame, Layered Linens, and a Window That Earns Its Keep

Soft natural light from the black-framed window catches the warm grain of the wood bed frame and matching dresser. Layered cream and sand bedding keeps the palette grounded without feeling sparse. The framed tree photograph above the headboard echoes the fall foliage outside. Low-profile furniture lets the room breathe.
The framed tree photograph above the headboard echoes the fall foliage outside.
Gold Fixtures, Hexagon Tile, and a Bathtub That Actually Fits the Space

Brass hardware ties the vanity and towel bar together without trying too hard. Hexagon tile on the shower wall does most of the design work.
Worth Knowing: Hexagon tile has been used in bathrooms since the Victorian era, when small mosaic formats were favored for their durability on wet floors. It’s had several revivals since, but pairing it with warm brass fixtures is a more recent shift away from the chrome-and-subway-tile formula that dominated bathrooms for years. If you’re choosing grout color, going slightly darker than the tile itself tends to highlight the pattern rather than wash it out.
Pin It

Exterior rendering shows a two-story country-style home with a double garage and board-and-batten siding. Below, the floor plan reveals two bedrooms, a shared bath, laundry, and a family room with a kitchen on the upper level.
