
Would you like to save this?
Specifications
- Sq. Ft.: 1,930
- Bedrooms: 3
- Bathrooms: 2.5
- Stories: 2
- Garage: 2
Main Level Floor Plan

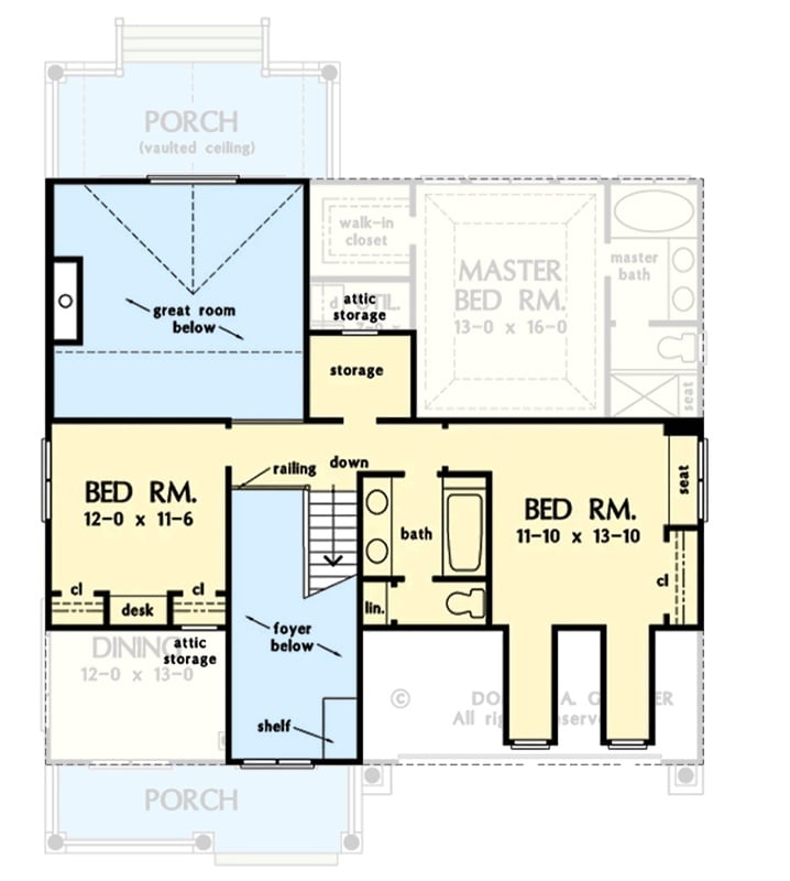
Second Level Floor Plan

๐ฅ Create Your Own Magical Home and Room Makeover
Upload a photo and generate before & after designs instantly.
ZERO designs skills needed. 61,700 happy users!
๐ Try the AI design tool here
Basement Stairs Location

Front View

Front Night View

Dining Room

Would you like to save this?
Great Room

Great Room and Kitchen

Rear-Right View

Rear-Left View

Details
This home pairs classic cottage styling with a clean, well-proportioned exterior that feels welcoming and timeless. Gabled rooflines, dormer windows, and a covered front porch establish a traditional presence, while the attached garage is integrated in a way that keeps the faรงade balanced and residential in scale.
The main level centers on a vaulted great room that serves as the primary living space, anchored by a fireplace and direct access to a covered rear porch. The kitchen is positioned just off the great room and connects easily to the dining area, creating a straightforward flow for daily living and casual entertaining. The dining space opens to the front porch, reinforcing the homeโs indoor-outdoor connection.
The primary bedroom is located on the main level for convenience and privacy, featuring a walk-in closet and an en-suite bath set apart from the main living areas. A utility space and powder room are tucked near the foyer, which features a two-story ceiling and stair access to the upper level.
The second level overlooks the great room below, maintaining an open feel while clearly separating private spaces. Two additional bedrooms are positioned on opposite sides of the floor, each with closet storage and access to a shared bathroom. Additional attic and storage areas enhance functionality without complicating the layout.
Pin It!

Architectural Designs Plan 444441GDN
