
🔥 Would you like to save this?
Specifications
- Sq. Ft.: 3,219
- Bedrooms: 5
- Bathrooms: 5.5
- Stories: 2
- Garage: 3
[su_spacer]
In order to come up with the very specific design ideas, we create most designs with the assistance of state-of-the-art AI interior design software. Also, assume links that take you off the site are affiliate links such as links to Amazon. this means we may earn a commission if you buy something.
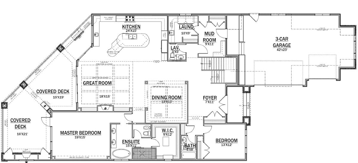
Main Level Floor Plan

Second Level Floor Plan

Lower Level Floor Plan
[su_spacer]
Front Entry

Foyer

Great Room

Great Room

Kitchen

Kitchen

Primary Bedroom

Primary Bathroom

Office

Wet Bar

Wet Bar
Covered Patio

[su_spacer]
Details
This European-inspired home design makes a strong first impression with a refined blend of stonework, steep rooflines, and dramatic window placement that gives the exterior a distinctive, upscale look. The front entry feels grand and sheltered, while the attached three-car garage adds everyday practicality without taking away from the home’s architectural presence.
Inside, the great room connects naturally to the kitchen, which features a large island and an efficient workspace layout. A formal dining room sits nearby for more structured meals, while a mudroom and laundry area off the garage entry help keep daily routines organized.
The primary suite is also located on the main level, offering privacy along with direct access to outdoor living areas and a spacious en-suite bath with a walk-in closet. An additional main-floor bedroom and full bath provide flexibility for guests or multi-generational living.
A private secondary suite adds even more versatility with its own living area, kitchen, eating space, full bath, and separate bedroom, creating an ideal arrangement for extended stays, independent living, or a long-term guest setup.
The lower level expands the home’s entertaining potential with a large family room, games area, and a dedicated sitting zone centered around a wet bar and wine storage. Two additional bedrooms and multiple bathrooms create a comfortable setup for guests or family members who want their own space. An exercise room adds another functional option, while cold storage and mechanical areas support long-term organization.
Pin It!

The House Designers Plan THD-12089
🔥 Would you like to save this?
European-Style 5-Bedroom Weatherby Home with Wet Bar and 3-Car Garage (Floor Plan)
Sq. Ft.: 4,836 | Bedrooms: 5 | Bathrooms: 3.5
Step Inside “Elizabeth Court” – A Stately 5-Bedroom Home Design (See 2D Floor Plan Drawings and It’s Impressive Interior)
Sq. Ft.: 5,603 | Bedrooms: 5 | Bathrooms: 5.1
5-Bedroom European Home for Wide and Sloped Lots with Angled Garage (Floor Plan)
Sq. Ft.: 5,917 | Bedrooms: 5 | Bathrooms: 6.5+
Transitional 5-Bedroom European Home with Loft and Flex Room (Floor Plan)
Sq. Ft.: 3,788 | Bedrooms: 5 | Bathrooms: 4
5-Bedroom European-Style Home with 3-Car Garage and Open-Concept Living (Floor Plan)
Sq. Ft.: 3,264 | Bedrooms: 4-5 | Bathrooms: 4

