
🔥 Would you like to save this?
Specifications
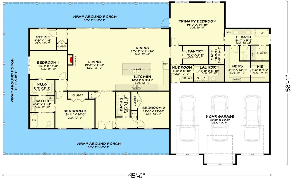
- Sq. Ft.: 2,748
- Bedrooms: 4
- Bathrooms: 3
Floor Plan

In order to come up with the very specific design ideas, we create most designs with the assistance of state-of-the-art AI interior design software. Also, assume links that take you off the site are affiliate links such as links to Amazon. this means we may earn a commission if you buy something.
This single-story layout puts four bedrooms plus a dedicated office across roughly 58 feet of depth. The primary suite sits apart from the other bedrooms with his-and-hers closets and a safe room nearby. A wraparound porch frames three sides, and the three-car garage connects through a mudroom and laundry corridor.
Wraparound Porch Anchors This Single-Story Contemporary Build

Dark posts carry the wide roofline past the main walls, creating a covered outdoor space that wraps generously. White exterior stays clean against wood-toned deck boards.
Cognac Leather and Marble Set the Tone in This Open-Plan Living Space
Sunlight cuts across the leather sofa at an angle that makes the whole room feel alive.
The marble coffee table sits low and wide, anchoring the seating area without competing with the wood floors. Beyond the sofa, a long dining table pulls the eye toward floor-to-ceiling glass that opens onto a green backyard.
Cognac Leather and Low-Slung Furniture Own the Open Floor Plan

Channel-tufted leather sofas anchor a living area that flows straight into the kitchen island. Gold cage pendants hang above. Warm afternoon light cuts across the jute rug, casting long shadows over the marble coffee table.
Editor’s Note: Open-concept plans like this one work best when the living and kitchen zones share a consistent material palette. Here, warm wood tones in the flooring carry through to the furniture frames, keeping things cohesive without any deliberate coordination. It’s the kind of layout that earns its openness rather than just advertising it.
Beyond the living area, the kitchen island pulls double duty as both a prep space and a casual gathering spot.
Olive-Green Smeg and Gold Cage Pendants Give This Kitchen Its Personality

Retro olive toaster sits against stone-edged countertops while brass cage pendants hang overhead. Cognac barstools with chrome legs tie the kitchen back to the warmer living zone just steps away.
Warm Light and a Low Platform Bed Make This Bedroom Feel Like a Retreat

Sheer linen curtains diffuse morning light across herringbone hardwood floors, keeping the room soft without going dim. A dark upholstered platform bed sits low to the ground, grounded further by a chunky mustard knit pouf at its foot. That rounded leather armchair with yellow band detail pulls the gold accent through without matching it too precisely.
History Corner: Platform beds trace their roots to ancient Egypt, where sleeping low to the ground was common among nobility using wooden frames inlaid with woven cord. The style moved through Japanese interior tradition before gaining mainstream Western popularity in the mid-20th century. Today’s versions tend to ditch the box spring entirely, relying on a solid base for support.
Pin It

Exterior rendering pairs with a detailed floor plan showing four bedrooms, a wraparound porch, and a three-car garage.
Color Story: Warm white stucco keeps the exterior neutral so the roofline does the work. That slight shed pitch draws the eye across the facade without competing with the wraparound porch below. It’s a restrained choice that holds up better over time than accent cladding trends.
