
🔥 Would you like to save this?
Specifications
- Sq. Ft.: 3,037
- Bedrooms: 3
- Bathrooms: 2.5
Floor Plan

In order to come up with the very specific design ideas, we create most designs with the assistance of state-of-the-art AI interior design software. Also, assume links that take you off the site are affiliate links such as links to Amazon. this means we may earn a commission if you buy something.
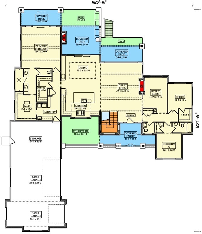
Main level shows primary bedroom suite, great room, dining, kitchen, courtyard, office, sitting room, and bedroom two, with multiple covered decks and a three-car garage.
Floor Plan

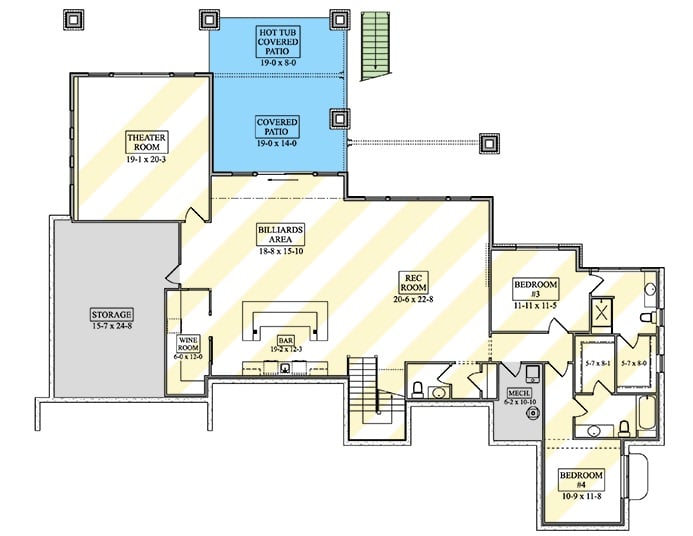
Four distinct entertainment zones anchor this lower level. The billiards area, bar, and rec room flow together as one connected social space. A theater room and wine room add dedicated leisure areas. Two bedrooms share a bathroom. Covered patio access and a hot tub patio extend the living area outdoors. Storage occupies the far left wing.
Floor-to-Ceiling Stone Fireplace Anchors an Open-Concept Living Space
Stacked stone rises to the ceiling beside floating dark shelves. A black leather sofa faces the TV while white bouclé chairs sit opposite on a neutral rug.
Designer’s Secret: Mixing a dark sofa with light upholstered chairs creates visual balance without requiring matching sets. The trick lies in keeping the rug neutral, so neither piece dominates the room.
Dark Cabinetry and Tile Backsplash Define a Kitchen Built for Serious Cooking

Charcoal cabinetry runs floor to ceiling along two walls, paired with a fluted dark tile backsplash that adds texture without pattern. Pendant lights hang at varied heights over a white quartz island. Three upholstered counter stools with black metal frames sit at the island. Double-wall ovens anchor the far right wall.
Style Math: Dark lower cabinets paired with white countertops work because the contrast pulls your eye horizontally across the space rather than straight up. Adding one reflective surface, like polished tile or stainless steel appliances, keeps the palette from reading flat. The result is depth without drama.
Exposed Ceiling Beams and a Wood Slat Accent Wall Set the Tone for This Primary Suite

Dark wood beams run the length of the ceiling, paired with vertical slat paneling on the back wall. The sleigh bed sits in espresso-stained wood with white bedding and black, white, and yellow pillows. Sliding glass doors open to a balcony overlooking open prairie. Gray carpet grounds the space.
Style Tip: Wood slat wall panels work best when they match or closely echo existing wood tones in the room, like ceiling beams or bed frames. Keeping that connection between vertical and horizontal elements makes the design feel intentional rather than decorative.
The primary suite sets a strong tone, but the en suite bathroom carries that design language even further.
Concrete Vessel Sinks and Black Vanities Shape a Bathroom Built Around Contrast

Paired gray concrete vessel sinks sit on white countertops above black cabinetry. A rain showerhead, pendant lighting, and framed mirrors complete the space, with an open doorway connecting directly to the bedroom beyond.
Transition: Vessel sinks look best when the vanity height accounts for the added bowl depth. Standard countertop height plus a tall vessel sink can feel awkward to use daily. Dropping the vanity cabinet a few inches compensates and keeps the overall height comfortable without sacrificing the visual effect.
Oversized Wall Clock and Linear Fireplace Ground a Living Room Built on Warm Contrast

Leather sofa, bouclé chairs, dark wood coffee table, and a linear fireplace anchor this neutral, layered space.
Pool Table and Home Bar Turn the Lower Level into a Full Entertainment Zone

Wool carpet, a wood-frame pool table, and bar stools with cushioned seats fill the space. Stone veneer backs the bar area, where open shelving holds bottles above a white countertop.
Covered Deck and Stone Columns Frame a Mountain Home Built for Open-Air Living

Glowing interior light spills through floor-to-ceiling windows across two levels. Stone columns anchor the covered deck, while black steel railings and a staircase connect upper and lower outdoor spaces. Board-and-batten siding meets stacked stone cladding across the facade. Dry grassland and a split-rail fence complete the scene.
Pin It

Exterior photo shows a contemporary mountain home at dusk, floor plan reveals courtyard, three bedrooms, and multiple covered decks.
🔥 Would you like to save this?
Check Out This Contemporary Style 1,416 Sq. Ft. 3-Bedroom Home with Front Porch and Double Garage (Floor Plan Included)
Sq. Ft.: 1,416 | Bedrooms: 3 | Bathrooms: 2.5
Discover This 2,346 Sq. Ft. 3 Bedroom Farmhouse with Bold Black Accents – Check Out the Floor Plan
Sq. Ft.: 2,346 | Bedrooms: 3 | Bathrooms: 2.5
Tour This 3,595 Sq. Ft. 3 Bedroom Home with Open-Concept Living & Balcony (Check Out the Floor Plan)
Sq. Ft.: 3,595 | Bedrooms: 3 | Bathrooms: 4.5
Contemporary-Style 3-Bedroom Berry Path with Open Living Space and Double Rear Garage (Floor Plan)
Sq. Ft.: 2,483 | Bedrooms: 3 | Bathrooms: 3.5
Coastal 3-Bedroom Contemporary Home with Wet Bar and 3-Car Garage (Floor Plan)
Sq. Ft.: 3,178 | Bedrooms: 3 | Bathrooms: 3.5+

