
🔥 Would you like to save this?
Specifications
- Sq. Ft.: 2,102
- Bedrooms: 3
- Bathrooms: 2.5
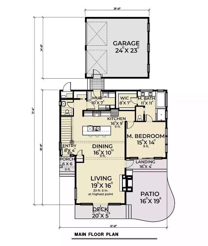
Floor Plan

In order to come up with the very specific design ideas, we create most designs with the assistance of state-of-the-art AI interior design software. Also, assume links that take you off the site are affiliate links such as links to Amazon. this means we may earn a commission if you buy something.
The main floor places the master bedroom and open living, dining, and kitchen areas at the core, with a mud room connecting to the garage, plus a patio, deck, and front porch outside.
Floor Plan

The second floor holds a bedroom, a loft/bedroom, a full bath, and a landing, with an open-to-below section overlooking the main living area.
Double-Height Windows Frame Autumn Forest Views in This Carolina Great Room
Dark leather sofas anchor the seating area around a fireplace with a raw wood mantel and slate surround. Mint green swivel chairs add contrast. Black-framed floor-to-ceiling windows flood the space with natural light, while hardwood floors and potted ferns reinforce the connection to the wooded surroundings outside.
Moving from the great room, the open-concept dining area pulls the interior story together with equal clarity.
Reclaimed Beam Ceiling Anchors an Open Dining and Kitchen in Warm Wood Tones

Live-edge dining table, metal-leg chairs, wood plank floors, and pendant lights over a reclaimed-wood kitchen island define this space.
Reclaimed Wood Island Base Pairs with Quartz Counter in Modern Farmhouse Kitchen

Weathered barn wood clads the island base beneath a white quartz countertop. Four slate-blue barstools line one side. Light maple cabinetry, a wall-mount range hood, a stainless French-door refrigerator, and pendant lights with smoked glass shades complete the space.
Trend Alert: Mixing reclaimed wood with polished quartz countertops is gaining traction in contemporary kitchens, offering raw texture alongside clean, durable surfaces. Designers are pairing aged materials with flat-front cabinetry to ground modern spaces without relying on ornament. The contrast does the work that color alone cannot.
Clerestory Windows and Floor-to-Ceiling Glass Open a Bedroom to the Forest

Soft white walls pair with light hardwood floors and a black-framed sliding glass door that leads directly to a patio. Neutral bedding layers in white and gray sit atop a bed skirted in charcoal. A wood-framed floor mirror, a patterned area rug, and a small wooden sign reading “our nest” complete the space.
Designer’s Secret: Floor-to-ceiling sliding glass doors in a bedroom work best when paired with high clerestory windows above an adjacent wall, giving occupants control over privacy without sacrificing natural light. Positioning the bed to face the glass rather than flank it maximizes the outdoor connection from a resting position.
Freestanding Soaking Tub Sits Beneath Black-Framed Windows in Forest-Facing Bath

Warm honey-toned cabinetry anchors a double vanity with white quartz counters and matte black fixtures. Folded gray towels stack neatly in open shelving below. Wall-mount tub filler in matte black draws the eye toward a freestanding soaking tub. Geometric tile climbs the accent wall beside two windows, framing autumn trees in full color.
Wall-mount tub filler in matte black draws the eye toward a freestanding soaking tub.
Garage Gym Meets Hunting Lodge in This Converted Carolina Bonus Space

Gray-painted accent wall displays antler mounts and a Purdue banner. Vinyl plank flooring, a road bike on a trainer, a treadmill, a black mini-fridge, and a cabinet countertop carve out a functional, personality-packed retreat.
Editor’s Note: Converting an attached garage into a multipurpose bonus room can add usable square footage without requiring a full addition. Insulating the walls and installing luxury vinyl plank flooring are among the most cost-effective first steps. Garage conversions typically recoup 65 to 80 percent of their cost at resale, according to remodeling industry data.
Pin It

Outside, large sliding glass doors open to a curved patio with Adirondack seating amid autumn trees. Below, the main floor plan reveals an open-concept layout with a master bedroom, generous living and dining areas, attached garage, and covered deck.
