
Would you like to save this?
Specifications
- Sq. Ft.: 1,308
- Bedrooms: 2
- Bathrooms: 1
- Stories: 2
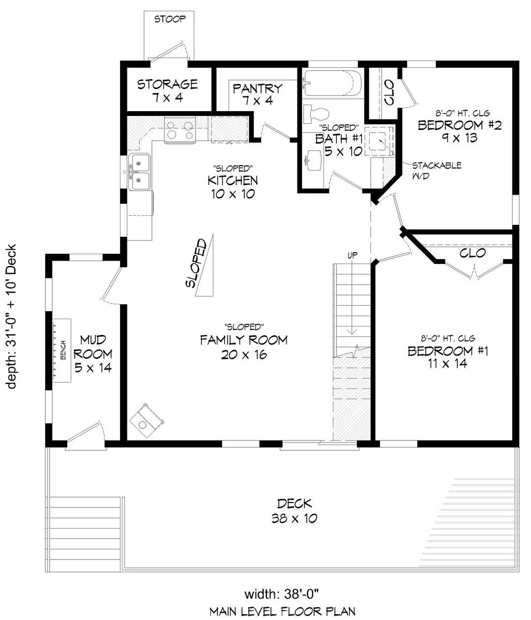
Main Level Floor Plan

Loft Floor Plan

๐ฅ Create Your Own Magical Home and Room Makeover
Upload a photo and generate before & after designs instantly.
ZERO designs skills needed. 61,700 happy users!
๐ Try the AI design tool here
Front View

Deck

Mudroom

Family Room

Would you like to save this?
Family Room

Open-Concept Living

Dining Area

Dining Area and Kitchen

Bedroom

Bathroom

Loft

Loft

๐ฅ Create Your Own Magical Home and Room Makeover
Upload a photo and generate before & after designs instantly.
ZERO designs skills needed. 61,700 happy users!
๐ Try the AI design tool here
Details
This contemporary home blends clean lines with a warm, functional layout designed for everyday living and flexible use. The exterior features a modern shed-style roofline, mixed siding materials, and expansive windows that bring natural light deep into the interior while creating a strong connection to the outdoors.
Inside, the main level centers around an open family room with a sloped ceiling, creating a sense of volume without feeling oversized. The kitchen and dining area flow naturally from this space, offering a practical layout with clear sightlines and easy movement for daily routines or casual gatherings.
Two bedrooms on this level provide comfortable accommodations, supported by a full bath and a well-placed utility area that keeps household functions organized and out of the way. A mudroom-style entry adds convenience and storage, especially for active lifestyles.
The upper level features a loft-style bonus room that overlooks the space below, making it suitable for creative use, a home office, or an additional lounge area. This level adds flexibility without separating it entirely from the rest of the home, maintaining a connected feel throughout.
Pin It!

The Plan Collection Plan 196-1886
