
🔥 Would you like to save this?
Specifications
- Sq. Ft.: 2,973
- Bedrooms: 4
- Bathrooms: 4
Floor Plan

In order to come up with the very specific design ideas, we create most designs with the assistance of state-of-the-art AI interior design software. Also, assume links that take you off the site are affiliate links such as links to Amazon. this means we may earn a commission if you buy something.
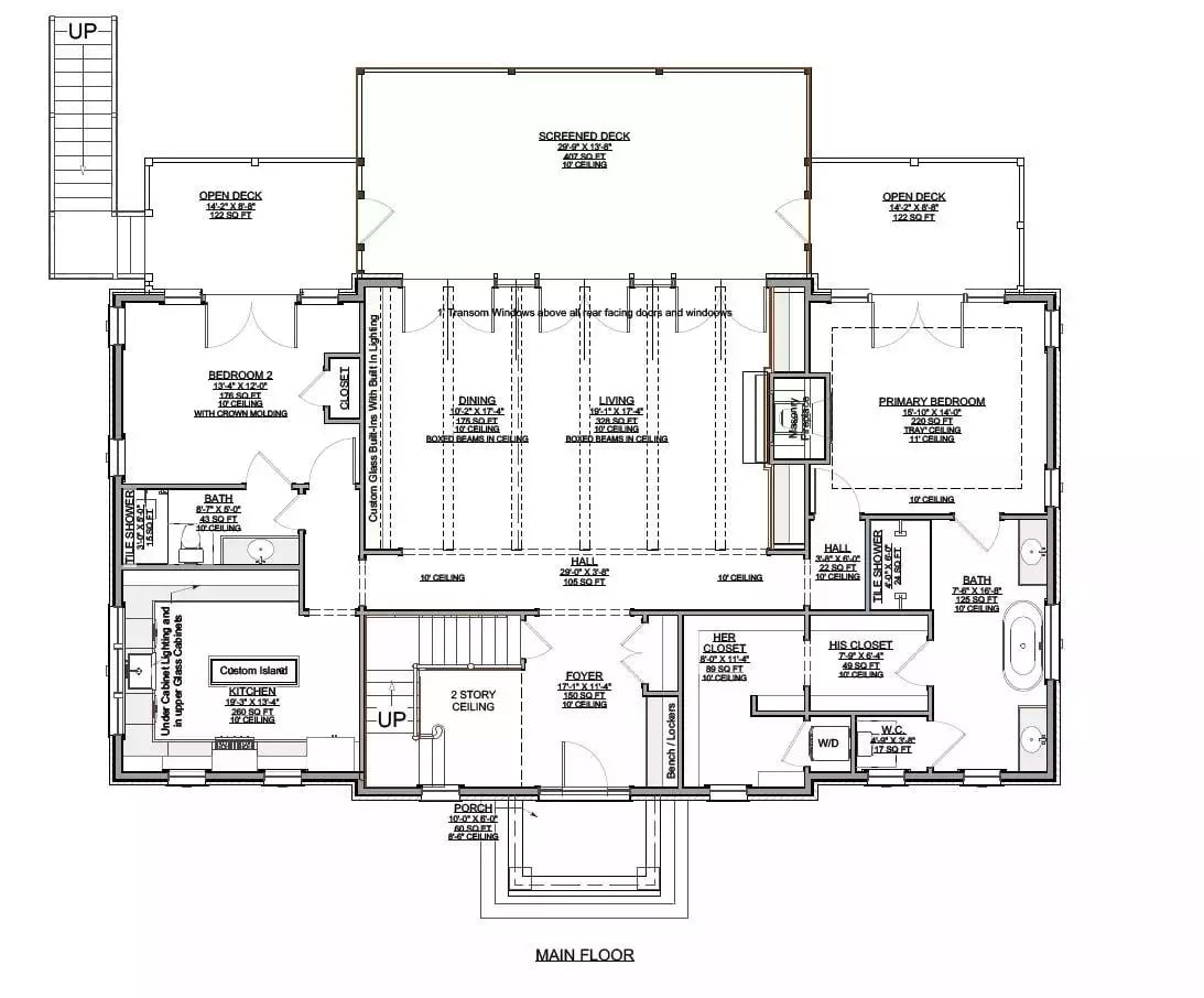
The main floor centers on an open dining and living area with boxed beam ceilings, flowing toward a screened deck at the rear. The primary bedroom suite includes two closets, a tile shower, and a soaking tub. A second bedroom, kitchen with custom island, foyer, and mudroom bench complete the layout.
Floor Plan

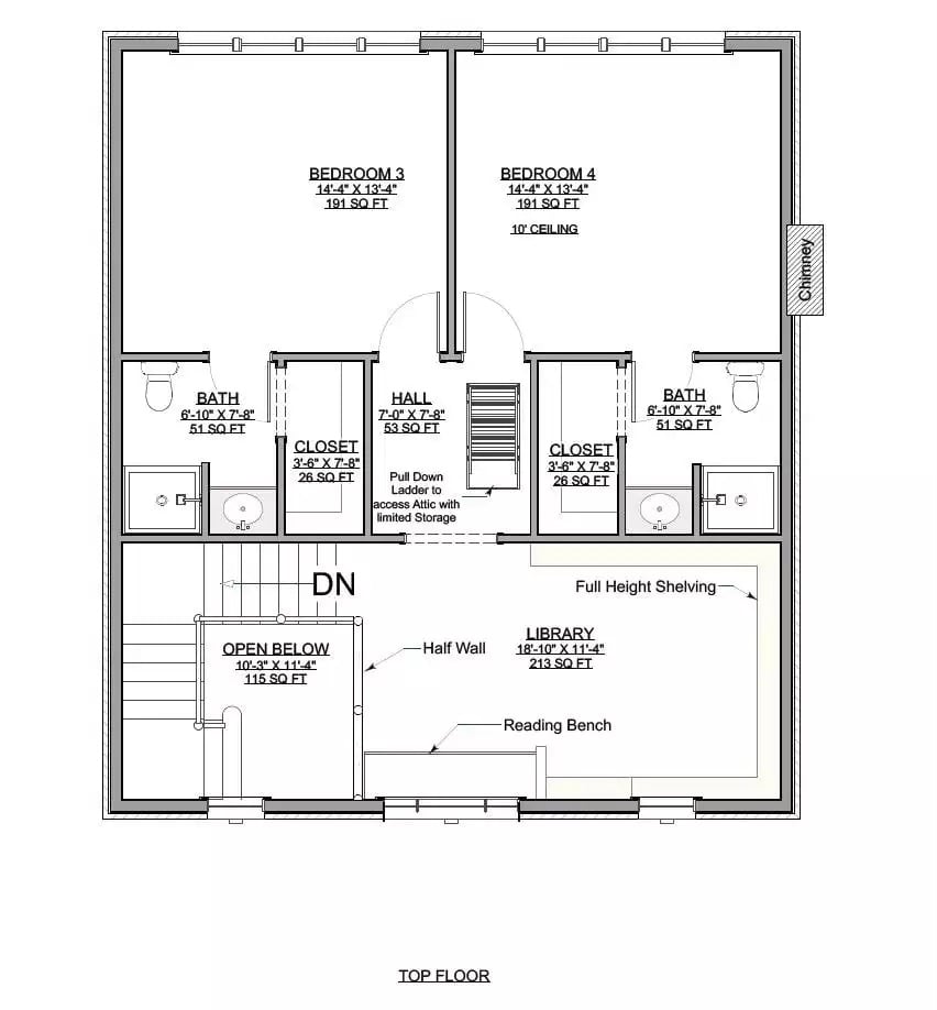
The upper floor hosts two bedrooms of equal size flanking a central hall, each with a dedicated closet and shared bath access. A library with full-height shelving and a reading bench anchors the south side. Pull-down attic access and an open stairwell complete the layout.
Floor Plan
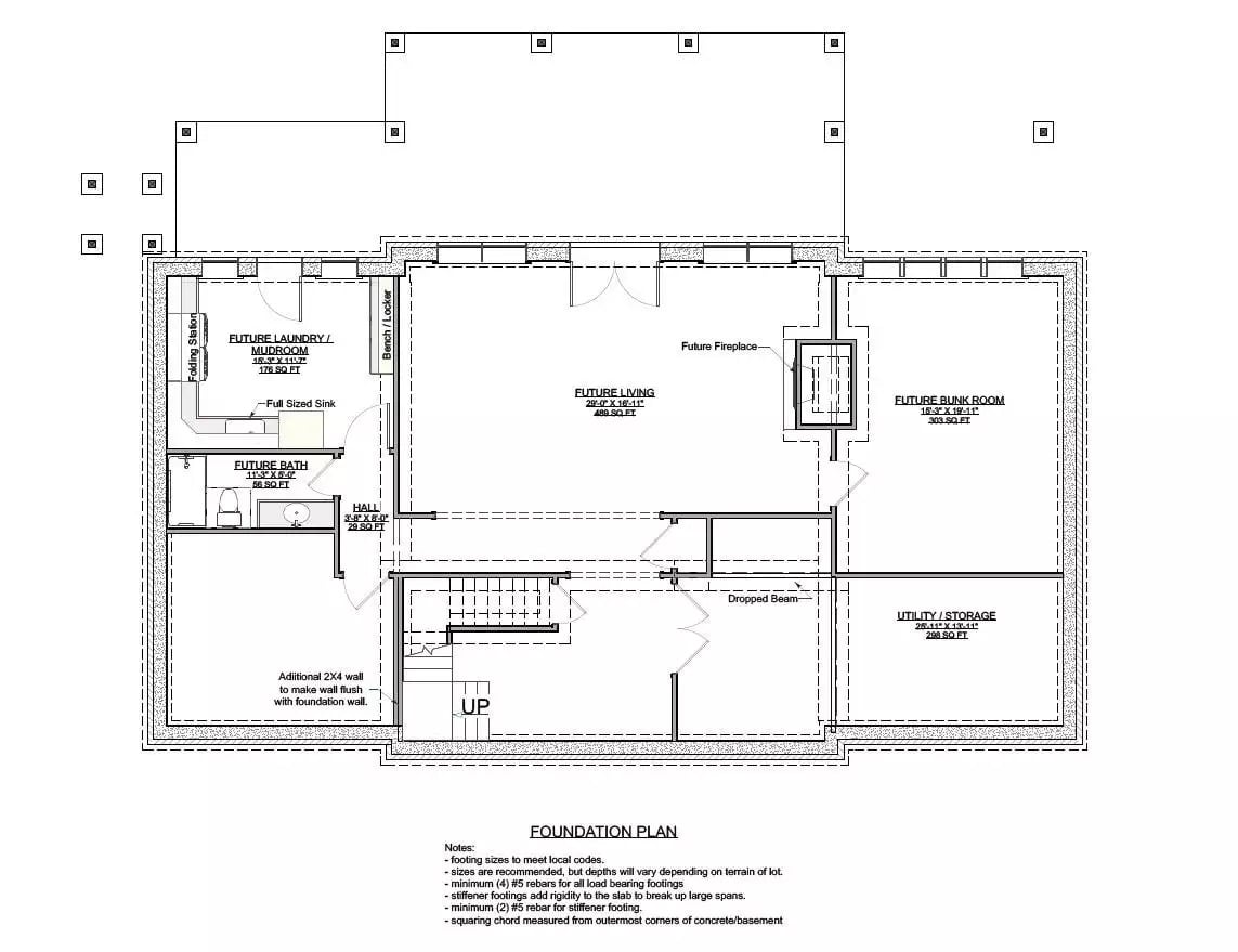
Basement layout includes a future living area, bunk room, laundry/mudroom, bath, and utility storage. Stairs lead up to the main level. A dropped beam divides zones, and a future fireplace anchors the living space.
Raised Screened Deck Anchors This Colonial Rear Elevation with Mountain Views

White lap siding wraps the two-story exterior beneath a gray roof with dormers. Cedar deck boards support a screened porch above a lower patio. Painted wood railings line the staircase. Mature trees frame the left side against a snow-capped peak.
Ask Yourself: Would a screened porch at this height work better with a solid privacy wall on one side, or do the open railings suit your yard’s sightlines? Consider how prevailing winds and sun exposure on your specific lot might influence that choice before finalizing the design.
Checkered Foyer Floor Sets the Tone Before You Reach the First Step

Gray-and-white checkered tile anchors the entry. Board-and-batten paneling climbs beside dark-stained wood balusters, with white spindles and recessed ceiling lights beyond.
Fun Fact: Board-and-batten wainscoting applied to stairwell walls dates back to 17th-century Scandinavian construction, where flat boards covered gaps between vertical planks for insulation. Today, builders use it purely for visual depth. Painting it the same color as the wall, as done here, creates shadow lines without color contrast.
Paired Sofas and a Shiplap Fireplace Wall Give This Living Room Its Quiet Authority

Two low-profile sofas in warm taupe face each other across a wood coffee table and upholstered ottoman. Shiplap panels painted white frame the fireplace surround. Recessed built-ins flank the hearth. Dark wood planks run across the ceiling, grounding the otherwise light palette. Bronze and cream accent pillows add depth.
The Psychology Behind This: Symmetrical furniture arrangements trigger a sense of calm because the brain processes balanced spaces with less cognitive effort. Placing two identical seating pieces across from each other reinforces that effect by removing visual uncertainty about where to sit or focus. Rooms designed this way are often rated as more comfortable even before anyone sits down.
Moving inside, the kitchen reveals how much work a clean palette can do across every surface.
Brass Hardware and a Wood Island Counter Break the All-White Kitchen’s Monotony

Shaker cabinets run floor to ceiling on three walls. Cup pulls in brushed brass add warmth. A wood-top island grounds the space, while subway tile and pendant lights keep proportions balanced throughout.
Warm Linen Upholstery and Paired Nightstand Greenery Define This Primary Bedroom

Sunlight does more design work here than any fixture ever could.
Natural light floods through four windows, washing over a linen-upholstered bed in warm sand tones. Matching oak nightstands flank the headboard, each topped with a white ceramic vase holding leafy branches. A low bench at the footboard grounds the arrangement. Herringbone hardwood floors anchor the soft palette beneath a faded area rug.
Oval Mirrors and a Freestanding Tub Keep This Primary Bath Quietly Composed

Soft sage walls pair with marble-look countertops and floor tile in a pale grid. A brass-rimmed mirror anchors the left vanity. The oval soaking tub sits centered beneath a wide window.
A brass-rimmed mirror anchors the left vanity while the oval soaking tub sits centered beneath a wide window.
Pin It

Classic Colonial architecture dominates the exterior rendering, with dormers, blue shutters, and a pediment entry. Below, the main floor plan reveals a primary bedroom suite, two living spaces, a screened deck, open decks on each side, a kitchen with a custom island, dedicated his-and-her closets, and a two-story foyer anchoring circulation through the home.
History Corner: Colonial Revival architecture gained its strongest foothold in America between 1880 and 1955, when builders looked to Georgian and Federal precedents for symmetry and formal entry composition. The centered pediment portico seen here reflects that tradition directly, functioning as both a visual focal point and a practical shelter over the entry door. Pattern books published by architects like Asher Benjamin spread these details from New England towns into mainstream residential construction across the country.
