
🔥 Would you like to save this?
Specifications
- Sq. Ft.: 1,981
- Bedrooms: 3
- Bathrooms: 2.5
- Stories: 2
- Garage: 2
Main Level Floor Plan

In order to come up with the very specific design ideas, we create most designs with the assistance of state-of-the-art AI interior design software. Also, assume links that take you off the site are affiliate links such as links to Amazon. this means we may earn a commission if you buy something.
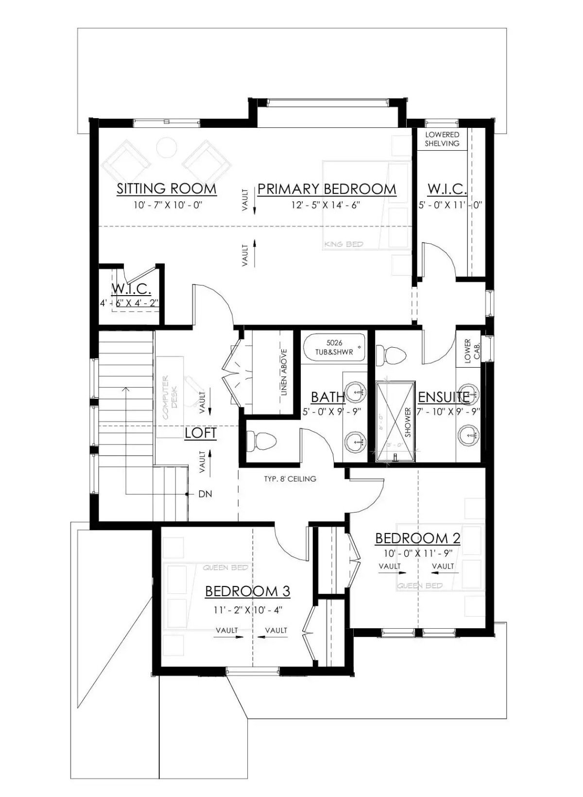
Second Level Floor Plan

Lower Level Floor Plan
Front-Left View

Front-Right View

Rear-Left View

Kitchen and Dining Area

Kitchen

Dining Area

Great Room

Great Room

Primary Bedroom

Primary Bedroom

Primary Bedroom
Primary Bathroom

Details
This farmhouse features board-and-batten siding with a prominent front gable and covered entry porch. The compact two-story design maximizes living space while maintaining a charming, efficient footprint.
The main level centers around an open great room that flows into the dining area and kitchen with an island. A rear deck extends the living space outdoors. A versatile office near the entry provides workspace, while a powder room and two-car garage complete this floor. A covered front porch adds welcoming curb appeal.
Upstairs, the primary bedroom features vaulted ceilings and includes a luxurious ensuite with a separate shower and an oversized walk-in closet. Two additional bedrooms with vaulted ceilings share a full bathroom. A sitting room adjacent to the primary suite offers flexible space, and a loft area overlooks the great room below.
The lower level provides an additional bedroom with its own bathroom, a large flex space perfect for recreation or media, a computer nook, and a mechanical room. This three-level design efficiently maximizes every square foot while creating distinct zones for family living and guest accommodation.
Pin It!

The House Designers Plan THD-12007
