
🔥 Would you like to save this?
Specifications
- Sq. Ft.: 1,377
- Bedrooms: 1
- Bathrooms: 2
Floor Plan

In order to come up with the very specific design ideas, we create most designs with the assistance of state-of-the-art AI interior design software. Also, assume links that take you off the site are affiliate links such as links to Amazon. this means we may earn a commission if you buy something.
Main level shows open family room, kitchen with island, two bathrooms, laundry, staircase, and wraparound deck.
Floor Plan

This upper level layout features a spacious loft that occupies the majority of the floor. A full bathroom with shower sits adjacent to the stairwell landing. A closet provides storage near the bath. The kitchen opens to a large wraparound porch that extends along two sides of the home. The stair placement creates efficient circulation between the loft and kitchen areas without wasting space.
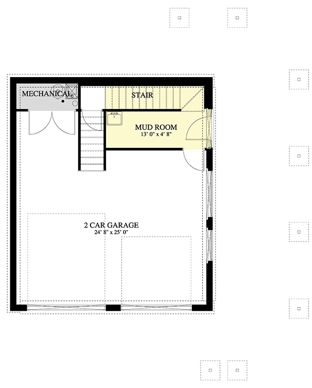
Floor Plan
Ground level features a spacious two-car garage measuring 24’8″ x 25’0″ alongside a mechanical room. Interior stairs lead upward past a compact mud room with laundry facilities. Door access connects garage to living spaces above.
Let’s step inside to explore the heart of the home.
Kitchen Wrapped in Natural Wood with Mountain Views Through Every Window

Honey-toned wood cabinets surround stainless steel appliances and dark granite countertops. Large tile flooring anchors the space while windows frame distant mountain peaks beyond.
Open-Plan Living and Dining Room Clad in Horizontal Wood Planking

Warm wood planks cover the walls while western-themed artwork hangs above a glass-topped dining table and gray leather sofa. Beige carpet extends throughout.
Living Room Featuring Beige Leather Sofas and Horizontal Wood Paneling

Two beige leather sofas face each other across an ornate wooden coffee table. Horizontal wood planks cover walls surrounding plantation shutters.
Gray Leather Furnishings and Vaulted Ceiling Frame Panoramic Forest Views

Horizontal wood planks cover every wall in golden tones. A gray leather sofa faces windows framing forested mountains. Clerestory windows above bring extra daylight into the vaulted space. Matching end tables hold lamps with textured bases. An oval coffee table with tile inlay sits on neutral carpet. Western artwork hangs between window groupings.
Natural Wood Kitchen with Stainless Appliances and Dining Alcove Beyond

Dark tile flooring grounds the kitchen workspace, where black granite countertops contrast against honey wood cabinetry. Stainless steel appliances include a French-door refrigerator and electric range. A dining table sits in the carpeted area beyond, framed by windows that reveal mountain scenery. Recessed lighting dots the wood-planked ceiling above.
Loft Bedroom with Sloped Wood Ceiling and Balcony Overlook

A sloped ceiling clad in natural wood planks meets white drywall at a dramatic angle above the sleeping area. The bed sits on gray carpet beneath windows fitted with wooden shutters. A wooden railing borders the loft’s edge, opening to the space below and framing views of distant mountains through tall windows.
Trend Alert: Loft bedrooms in A-frame and cabin homes maximize vertical space while creating private retreats elevated above main living areas. The angled ceiling follows the roofline, turning what could be wasted attic space into a functional bedroom with character and height variations that flat ceilings can’t match.
Pin It

The top image showcases a three-story yellow home with double garage doors and an elevated wooden deck with mountain views. Below, the floor plan reveals an open family room anchored by the kitchen, plus two bathrooms, laundry, and stairs leading to upper levels. The wraparound deck extends living space outdoors.
🔥 Would you like to save this?
Two-Story Scandinavian Style 1-Bedroom Maja Cabin with Sleeping Loft (Floor Plan)
Sq. Ft.: 298 | Bedrooms: 1 | Bathrooms: 1
Cabin Style 1-Bedroom Two-Story Home for a Sloped Lot with Covered Patio (Floor Plan)
Sq. Ft.: 703 | Bedrooms: 1 | Bathrooms: 1.5
Single-Story 1-Bedroom Wood Cabin Aiko with Loft (Floor Plan)
Sq. Ft.: 215 | Bedrooms: 1 | Bathrooms: 1
Single-Story Debra Micro Cabin with Loft Bedroom and Rooftop Deck (Floor Plan)
Sq. Ft.: 351 | Bedrooms: 1 | Bathrooms: 1
Two-Story 1-Bedroom Hailey Cabin on Stilts with Loft (Floor Plan)
Sq. Ft.: 316 | Bedrooms: 1 | Bathrooms: 1

