
🔥 Would you like to save this?
Specifications
Sq. Ft.: 2,548
Bedrooms: 2
Bathrooms: 2.5
Stories: 1
Garage: 3
In order to come up with the very specific design ideas, we create most designs with the assistance of state-of-the-art AI interior design software. Also, assume links that take you off the site are affiliate links such as links to Amazon. this means we may earn a commission if you buy something.
Main Floor Plan

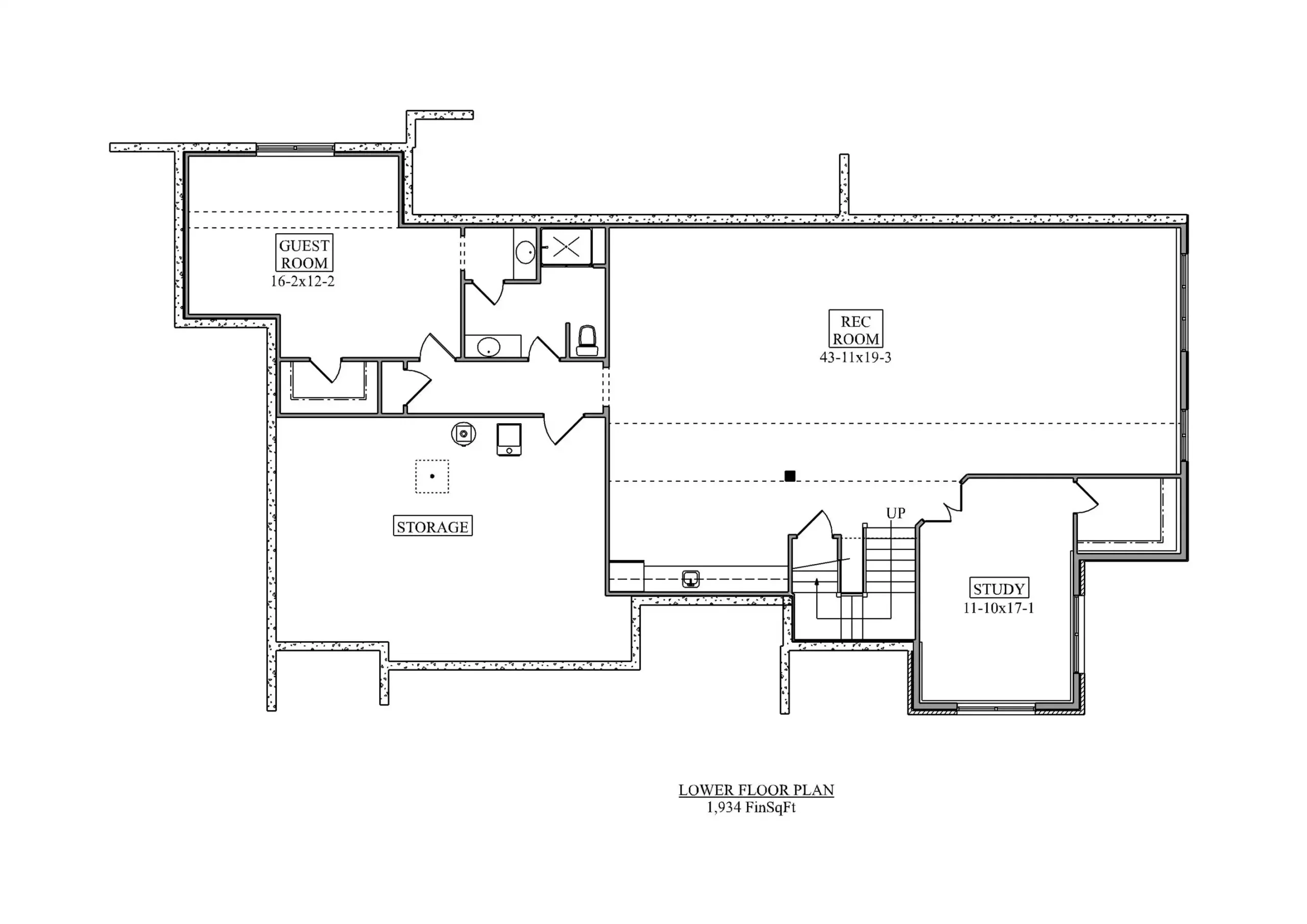
Lower Level Floor Plan

Front View
Rear View

Great Room

Dining Room

Kitchen

Kitchen

Stairs

Primary Bedroom

Primary Bedroom

Primary Bathroom

Primary Bathroom

Office
Recreation Room

Details
This welcoming home offers 2,548 square feet of heated living space with two bedrooms thoughtfully arranged in a split-bedroom layout for privacy and comfort.
The open floor plan connects a spacious great room, U-shaped kitchen, large island, eating peninsula, and dining area for easy everyday living. A butler’s pantry and walk-in pantry add practical storage, while the main-floor primary suite features a walk-in closet, double vanity, and a separate tub and shower.
The home office, library/media room, mud room, and first-floor laundry bring convenience to busy routines. The finished lower level provides added flexibility for a rec room or future expansion, supported by generous unfinished space.
Covered porches in the front and rear offer inviting outdoor areas to unwind and enjoy fresh air. With warm gathering spaces and private retreats, this home is designed to make daily life feel comfortable and fulfilling.
Pin It!

The House Designers Plan 12060
