
🔥 Would you like to save this?
Specifications
- Sq. Ft.: 2,179
- Bedrooms: 2
- Bathrooms: 2.5
Floor Plan: The Master Bedroom Tucks Into a Private Wing With Its Own Entrance

In order to come up with the very specific design ideas, we create most designs with the assistance of state-of-the-art AI interior design software. Also, assume links that take you off the site are affiliate links such as links to Amazon. this means we may earn a commission if you buy something.
The master suite occupies the right wing with walk-in closet and private bath access. Living spaces center around an open kitchen with walk-in pantry. Mudroom connects garage to main living areas efficiently.
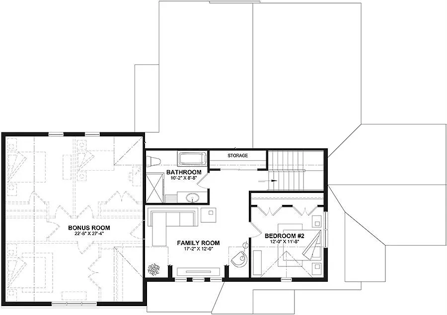
Upper Floor Plan: Bonus Room and Second Bedroom Share a Full Bath

Upstairs, a bonus room and second bedroom flank a central bathroom, with storage tucked beside the bath. Stairs arrive near the bathroom entry, creating a compact hallway. Bedroom #2 measures 12’0″ x 11’3″, while the family room below opens to 17′-2″ x 12′-0″. This level keeps guest or kids’ space separate from main living areas.
Fun Fact: The bonus room measures 22′-9″ x 18′-1″, large enough to serve as a media room, playroom, or home office. Its placement over the garage minimizes noise transfer to bedrooms on the main floor. The storage closet beside the bathroom helps keep seasonal items or overflow gear out of sight without requiring a trek to the attic.
Shiplap Wraps the Fireplace Column to Ground It in Farmhouse Style
White shiplap panels frame a vertical fireplace column, anchoring this open living area with texture and crafted detail. A gray sectional wraps around a round white coffee table on a jute rug. Black metal stair railings and wood treads lead upstairs. Large windows bring in natural light across light wood flooring.
Vaulted Ceilings and Floor-to-Ceiling Windows Turn This Dining Room Into a Treehouse

Pale wood planks on the vaulted ceiling draw eyes upward while wraparound windows frame greenery outside. Two pendant lights drop low over a blonde wood table surrounded by six wishbone chairs. A jute rug anchors the space.
Marble Slabs Climb the Kitchen Walls to Frame the Range in One Continuous Sweep

Book-matched marble rises from countertop to ceiling, creating a dramatic focal point behind the range. Light wood cabinetry on the island and hood balances cool white perimeter cabinets and warm oak floors throughout.
Horizontal Shiplap Behind the Bed Creates a Headboard Wall Without Hardware

Shiplap runs horizontally across the accent wall, creating a built-in headboard effect that anchors the bed without mounting anything. Walnut nightstands flank the upholstered frame, each topped with ceramic lamps. A low credenza spans the opposite wall beneath geometric prints. Light wood flooring contrasts with a jute rug layered under the bed and bench.
Subway Tile Wraps the Vanity Wall While Wood Shelving Carves Storage Into Dead Space

Built-in shelving flanks the vanity to store towels and botanicals without eating into the room’s footprint. Subway tile runs floor to ceiling behind twin round mirrors. White vessel sinks pair with matte black faucets. Wood cabinetry below offers closed storage with sleek bar pulls.
Editor’s Note: Round mirrors soften all the hard angles that wood and tile create together. Floating flowers between the sinks keep the counter from looking like a hotel bathroom. That doorway trim matches the shelving grain so the whole wall reads as one custom millwork moment.
Floor-to-Ceiling Cabinetry Lined With Vertical Grooves Hides Clutter in Plain Sight

Vertical grooves run down each cabinet door, adding texture that breaks up what could read as flat expanses of storage. Dark bronze pulls anchor each panel. Herringbone tile in warm blonde tones grounds the room and pulls warmth up from the floor. A low bench with cream upholstery offers a place to sit while sorting laundry or packing bags. Recessed panels on the lower cabinets create shadow lines that add depth.
Pin It!

