
🔥 Would you like to save this?
Specifications
- Sq. Ft.: 2,550
- Bedrooms: 3
- Bathrooms: 3
Floor Plan

In order to come up with the very specific design ideas, we create most designs with the assistance of state-of-the-art AI interior design software. Also, assume links that take you off the site are affiliate links such as links to Amazon. this means we may earn a commission if you buy something.
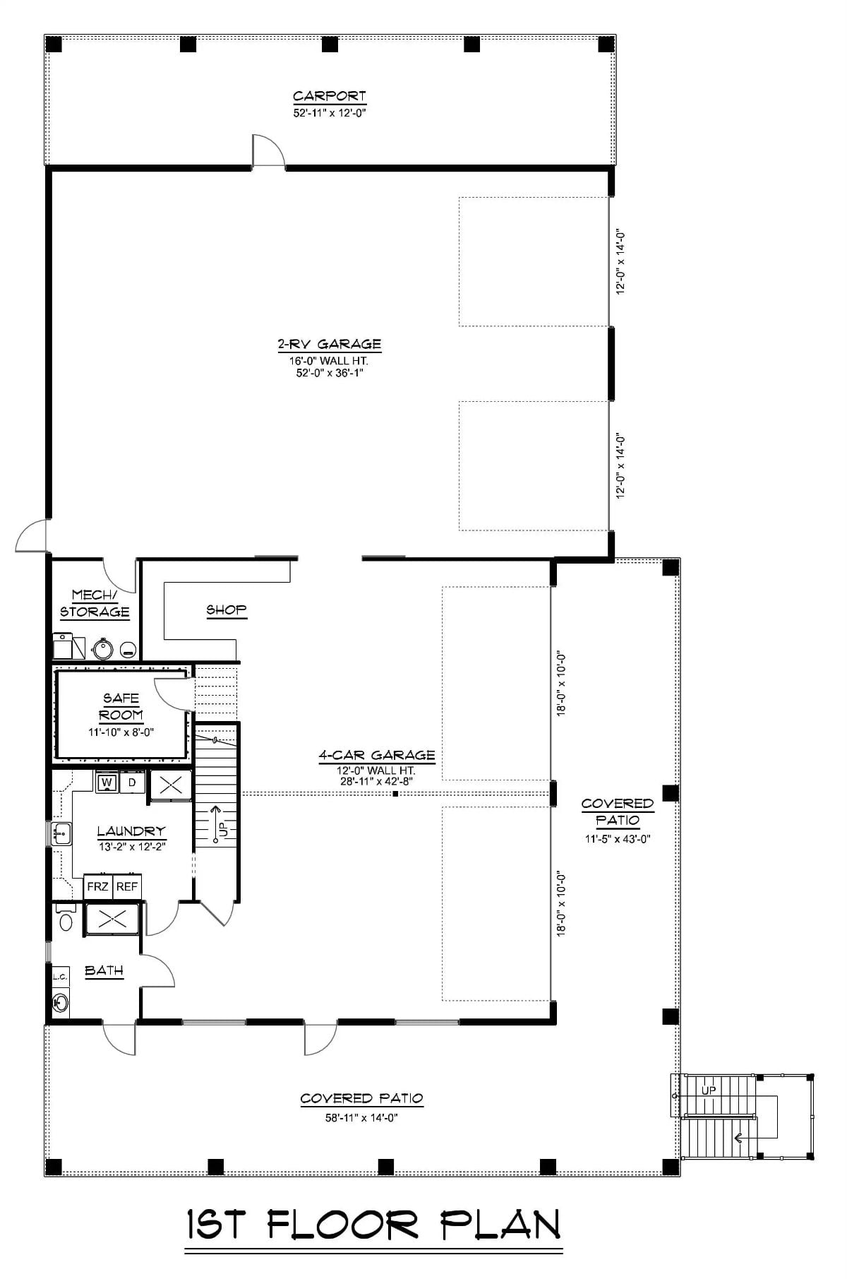
The first floor centers on a 2-RV garage with 16-foot walls alongside a 4-car garage. Support spaces include a safe room, laundry, shop, and bath. Two covered patios and a carport wrap the exterior perimeter.
Floor Plan

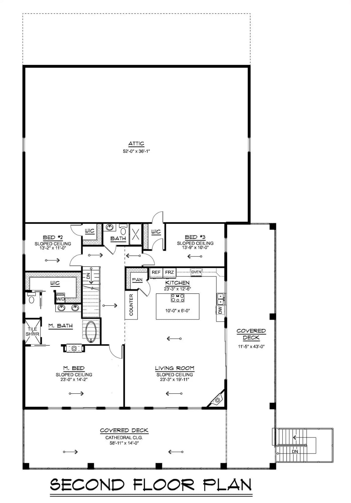
The second floor holds three bedrooms, each with sloped ceilings, plus a master suite with a walk-in closet, tile shower, and private bath. A central kitchen opens to the living room. Two covered decks wrap the south and east sides, adding substantial outdoor living space.
Wraparound Deck and Timber Frame Gables Define This Barndominium’s Exterior
Dark metal roofing contrasts with white board-and-batten siding across this two-story barndominium. Stained wood posts and cable railings frame an upper wraparound deck. Brown carriage-style garage doors and a stone chimney complete the exterior.
Quick Fix: Replacing standard deck posts with heavy timber columns like these adds visual weight and structural character that thin metal posts simply cannot replicate. Pairing them with cable railings keeps sight lines open without sacrificing the handcrafted look.
Bold Black Door and Warm Wood Tones Meet in This Upper Hallway

Painted black with raised panel detail and a brass knob, the interior door anchors the hallway. Light oak flooring runs throughout. A potted palm adds height near the baseboard. Metal railing balusters and an industrial pendant light complete the upper-level landing.
Common Mistake: Homeowners often paint interior doors black without updating the surrounding trim, which creates a muddy, unfinished look. For a crisp result, keep door casing white or off-white, so the contrast reads clearly. The difference between intentional and accidental is usually just the trim color.
White Brick Fireplace and Vaulted Ceiling Anchor This Sun-Filled Living Room

Whitewashed brick rises to a vaulted ceiling above a black firebox with visible flame. White sofas, a round wood coffee table, and a woven rug ground the open, light-filled space.
Whitewashed brick rises to a vaulted ceiling above a black firebox with visible flame.
Rope Chandeliers and Quartz Countertops Ground This Farmhouse Kitchen

Two rope-wrapped chandeliers hang above a wood island topped with white quartz. Four upholstered stools line the seating side. Upper cabinets stay white while lower cabinets shift to sage green with brass pulls. A stainless steel built-in refrigerator anchors the back wall beside double wall ovens.
Did You Know: Mixing cabinet colors, lighter upper cabinets and a deeper or contrasting lower, can make a kitchen feel taller by drawing the eye upward. Sage green has surged in popularity as an alternative to all-white kitchens because it reads as neutral while still adding color. Brass hardware works particularly well with sage because the warm metal tone keeps the palette from feeling cold.
Rattan Chandelier and Sage Brick Wall Set the Tone in This Primary Bedroom

Warm rattan pendant light hangs above a low-profile upholstered bed dressed in white linen. Floating wood shelves display books and small objects against sage brick. Ceramic table lamps flank dark nightstands, while a brick fireplace anchors the far right corner.
In The Details: Floating shelves positioned above a headboard work best when mounted at two different heights rather than side by side at the same level. The staggered placement creates depth and prevents the wall from feeling flat. Keep objects on these shelves lightweight to avoid the visual heaviness that large decor can create in a sleeping space.
Freestanding Soaking Tub Anchors a Vaulted Alcove in Soft Neutral Tones

Nestled inside a recessed alcove, this oval soaking tub sits on wood-look flooring over a woven rug. Botanical artwork, a matte black faucet, and a wood tray holding pump bottles complete the spa-like composition without visual clutter.
Pin It

Exterior rendering shows a timber-frame barndominium with wraparound deck and metal roof. Below, the first floor plan reveals a 2-RV garage, 4-car garage, safe room, laundry, and covered patios.
