
🔥 Would you like to save this?
Specifications
- Sq. Ft.: 1,660
- Bedrooms: 3
- Bathrooms: 2
Floor Plan

In order to come up with the very specific design ideas, we create most designs with the assistance of state-of-the-art AI interior design software. Also, assume links that take you off the site are affiliate links such as links to Amazon. this means we may earn a commission if you buy something.
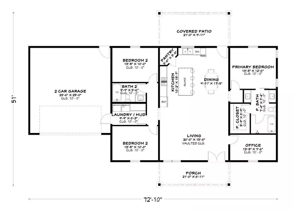
This ranch layout includes three bedrooms and two baths. The primary suite features a walk-in closet and private bath. An open kitchen flows into the dining and living areas. The two-car garage connects through a laundry room.
Welcoming Exterior with Farmhouse Charm and Landscaped Grounds

White vertical siding pairs with dark gray wainscoting across the lower facade. A prominent gable with exposed beams marks the central entry. Two matching front doors serve separate units. Manicured lawns and rounded shrubs border the stepping stone path. Yellow flowering plants add seasonal color to the approach.
Minimalist Living Room with Modern Lamp and Neutral Upholstery
Soft beige walls provide a backdrop for the light gray sofa adorned with teal, rust, and patterned pillows. A square coffee table features a concrete-look top with black metal legs. The spherical floor lamp extends from a cylindrical black base. Natural wood flooring runs throughout. A dining area with wooden chairs appears in the background beyond an open doorway.
Why It Works: The low-profile sofa with plush cushions creates an inviting spot without blocking sightlines to the dining area. This open layout allows light from the window to reach deep into the space, making the room feel larger than its footprint suggests.
Contemporary Living Space with Wood Accents and Earth Tones

Beige walls contrast with dark walnut media console and vertical slat paneling. A light wood entertainment unit sits beneath the mounted television. Cream sectional sofa pairs with round wooden coffee table. Modern floor lamp features circular globe design. Natural light streams through white-framed windows overlooking greenery.
Open-Concept Living with Dark Stone Island and Natural Wood Floors

Olive-toned walls frame an open layout where kitchen, living, and dining areas flow together. A dark stone island anchors the space. Wood flooring runs throughout. Gray seating and white cabinetry complete the palette.
Serene Bedroom with Gray Upholstered Bed and Layered Neutral Textiles

Charcoal linen bed anchors the space beneath flowing curtains that filter natural light. Wooden nightstands flank the headboard. Taupe and cream bedding layers with dark throws. A gray pouf rests on textured area rug over herringbone oak flooring. Potted greenery adds organic detail near the white paneled door.
Pin It

The upper image presents a ranch-style home with a dark roof and white siding accented by gray wainscoting. Warm light glows from multiple windows across the facade. Below, the floor plan reveals a 72-foot-wide layout with three bedrooms, two baths, and a two-car garage. The kitchen opens to a dining area and vaulted living room, with a covered patio extending from the rear.
🔥 Would you like to save this?
Tour This 3-Bedroom Arts and Crafts Style Ranch with Versatile Spaces (2,611 Sq. Ft. Floor Plan Included)
Sq. Ft.: 2,611 | Bedrooms: 3 | Bathrooms: 2.5
Arrondale 3-Bedroom Ranch with Double Garage and Open-Concept Living (Floor Plan)
Sq. Ft.: 2,099 | Bedrooms: 3 | Bathrooms: 2.5
Tour This Timeless 3-Bedroom Ranch with Open Concept Living and Inviting Brick Detailing (Over 3,000 Sq. Ft. Floor Plan)
Sq. Ft.: 3,024 | Bedrooms: 3 | Bathrooms: 3
3-Bedroom New American Ranch with 3-Car Garage and Lower Level Expansion (Floor Plan)
Sq. Ft.: 2,404 | Bedrooms: 3 | Bathrooms: 2

