
🔥 Would you like to save this?
Specifications
- Sq. Ft.: 2,558
- Bedrooms: 4
- Bathrooms: 2.5
Floor Plan

In order to come up with the very specific design ideas, we create most designs with the assistance of state-of-the-art AI interior design software. Also, assume links that take you off the site are affiliate links such as links to Amazon. this means we may earn a commission if you buy something.
First floor includes a shop, master suite, great room, kitchen, dining, office, mud room, laundry, foyer, and covered porch.
Floor Plan

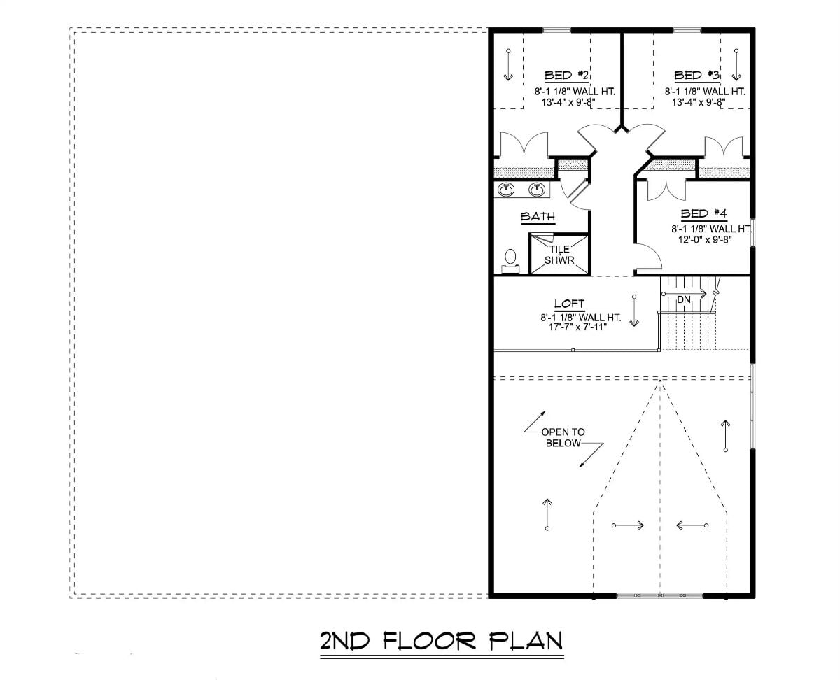
Three bedrooms and a shared bath occupy the upper-left section of the second floor. Bed #4 sits adjacent to the loft, which connects to a staircase going down. A large open-to-below area fills the lower half of the plan.
Soaring Ceilings and Gold Accents Define This Open Living Space
Double-height walls draw the eye upward toward clerestory windows framed in black. A tiered drum pendant hangs above an organic wood coffee table. White upholstered seating anchors the room while cane barstools line the kitchen counter. Marble cladding surrounds the fireplace, and potted palms add contrast against the pale oak flooring.
History Corner: Barndominiums originated as hybrid agricultural and residential structures in rural America during the mid-20th century. Builders favored their steel post-frame construction for its durability and low cost. Over time, the open floor plans and soaring interior volumes made them popular well beyond farm country.
Gold Pendants and Marble Backsplash Anchor This Kitchen’s Classic Character

Cane-back counter stools, brass fixtures, marble slab backsplash, and white cabinetry with gold hardware define this kitchen.
The Case for Slab Backsplashes Over Tile
Running marble in full slab form across the backsplash eliminates grout lines, which collect grease and require regular scrubbing. The continuous veining also creates visual movement that no tile pattern can replicate at this scale. Fabricators typically book-match slabs here, mirroring two cuts of stone to produce a symmetrical effect across the wall.
Open-Plan Living Where Kitchen Marble Meets Loft-Level Drama

Marble slab backsplash panels run from floor to upper cabinet, paired with brass fixtures and white cabinetry. A wood-wrapped island grounds the kitchen zone. Bar stools, lounge chairs, and a round dining set share light hardwood flooring. Above, a black steel railing traces the loft edge, visible from every corner of the main level.
Why It Works: Open-riser staircases with metal balusters became a signature detail in contemporary barndominium builds because they keep sightlines clear across tall interior volumes. Positioning the staircase against an interior wall, rather than a perimeter wall, preserves window placement for natural light. That choice is especially effective in row home configurations where side windows are limited.
Warm Light and Linen Curtains Frame a Bedroom Built for Rest

Cream linen drapes, a rattan floor lamp, and a wood-frame lounge chair anchor this sun-filled bedroom with views of green treetops.
Designer’s Secret: Pinch-pleat curtains hung close to the ceiling draw the eye upward and make standard-height rooms feel taller without any structural changes. Mounting the rod six to twelve inches above the window frame is one of the oldest tricks in residential interior design. Natural linen fabric diffuses afternoon light rather than blocking it, keeping the room bright without glare.
Gold Hardware and Oval Mirror Bring Quiet Luxury to This Powder Room

Soap dispensers and a wall sconce do more design work here than most furniture does in an entire room.
Warm brass fixtures pair with an undermount sink on a white stone countertop. Wall-mounted sconces cast soft light across textured plaster walls and wood floors.
Loft Sitting Area Balances Beige Upholstery Against Black Steel Railings

Two square-arm chairs in sand-toned fabric face a round coffee table with a thick pedestal base. A tripod floor lamp in walnut anchors the corner beside framed art. The open railing runs the full length of the loft edge, keeping the space visually connected to the floor below.
Sliding Barn Doors and Black Steel Glass Wall Define This Exterior Patio

Dark vertical siding frames two wood sliding barn doors mounted on black hardware. Below, white-cushioned outdoor sofas sit on a concrete patio beside a water view.
Pin It

Exterior rendering shows a barn-style home with a metal roof above; floor plan below reveals shop, master suite, great room, and mudroom layout.
