
Would you like to save this?
Specifications
- Sq. Ft.: 2,631
- Bedrooms: 4-5
- Bathrooms: 3.5-4.5
- Stories: 1
- Garage: 5
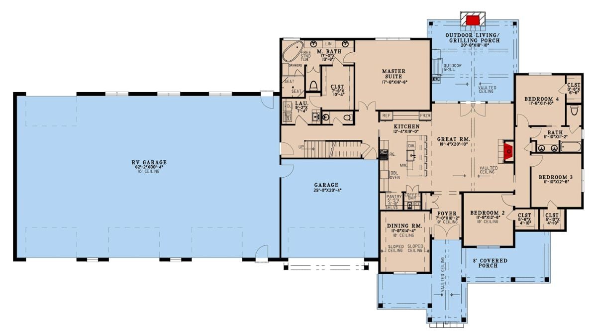
Main Level Floor Plan

Second Level Floor Plan

🔥 Create Your Own Magical Home and Room Makeover
Upload a photo and generate before & after designs instantly.
ZERO designs skills needed. 61,700 happy users!
👉 Try the AI design tool here
Front-Right View

Rear-Right View

Rear View

Rear-Left View

Would you like to save this?
Great Room

Great Room

Kitchen

Kitchen

Dining Area

Details
This barndominium-style home blends a long, low profile with warm wood finishes and simple rooflines that emphasize function and scale. Large garage doors and a recessed entry make its purpose clear, balancing residential comfort with serious utility.
Inside, the main level is organized for both daily living and flexibility. The great room sits at the center of the home with direct connections to the kitchen and dining area, creating an open layout that works well for gathering without wasted space. The kitchen is designed for efficiency with an island, pantry storage, and easy access to the dining area.
The primary suite is privately placed and includes a spacious bath and closet, while additional bedrooms are grouped on the opposite side of the home with a shared bathroom. Covered outdoor living space connects directly to the main living area, extending how the home can be used day to day.
The garage spaces are a major feature, with an oversized RV garage and additional vehicle storage designed to handle equipment, hobbies, or work needs. Above and adjacent to the garage, a bonus room with its own bathroom adds flexible space for guests, a home office, or recreation while remaining separate from the main living areas.
Pin It!

Architectural Designs Plan 70945MK
