
🔥 Would you like to save this?
Specifications
- Sq. Ft.: 1,482
- Bedrooms: 3
- Bathrooms: 2
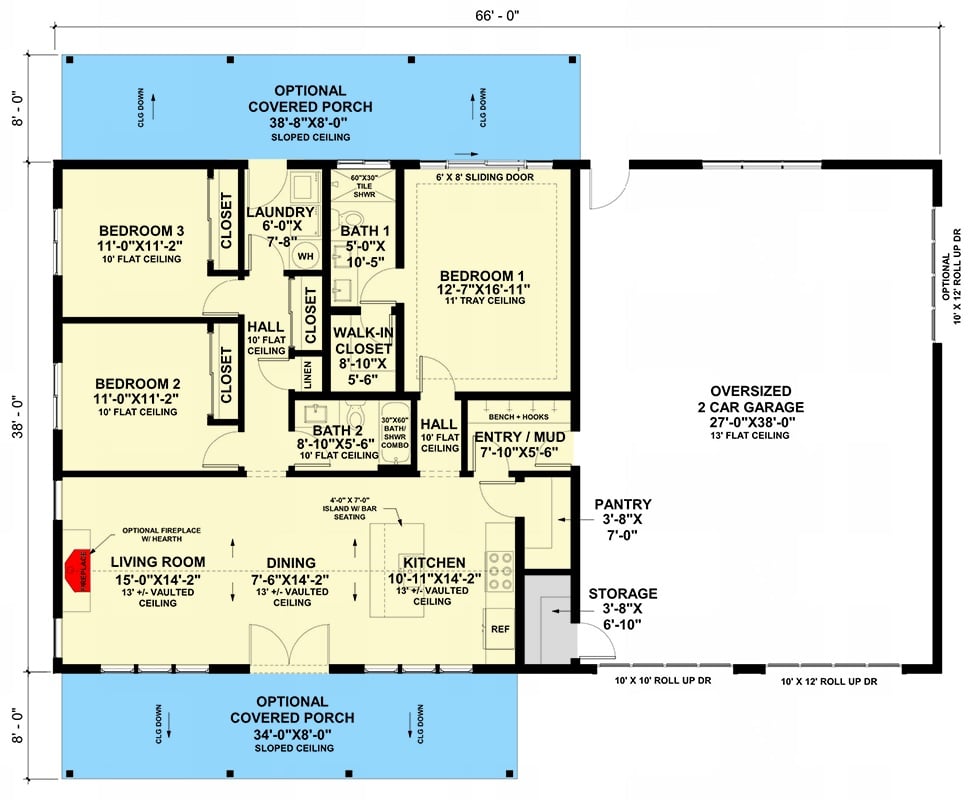
Floor Plan

In order to come up with the very specific design ideas, we create most designs with the assistance of state-of-the-art AI interior design software. Also, assume links that take you off the site are affiliate links such as links to Amazon. this means we may earn a commission if you buy something.
Three bedrooms are split across one level, with a primary suite featuring a tray ceiling and a walk-in closet. Open living, dining, and kitchen share vaulted ceilings. Dual covered porches flank the home front and rear.
Vaulted Ceilings and Gray Cabinetry Define This Barndominium Kitchen

Exposed wood beams, gray shaker cabinets, pendant lights, and light oak flooring anchor the space.
Vaulted Beams and a Stone Fireplace Anchor This Open-Plan Living Space
Light wood ceiling beams run the length of a cathedral ceiling above white shiplap. Dark-framed windows draw in greenery. An iron ring chandelier hangs over a marble dining table with upholstered chairs. A gas fireplace with a white brick surround anchors the living area.
Quick Fix: Swapping a traditional wood mantel for a stone or brick shelf, as seen here, reduces fire risk while keeping the hearth as a visual focal point. It also holds up better over time without warping or cracking.
This is Next Level 👇
Warm Wood Beams and a Leather Chair Ground This Barndominium Living Room

Shiplap ceilings with natural wood beams stretch overhead while a round metal chandelier anchors the center of the room. A sectional in cream faces a white brick fireplace with a wood mantel shelf. The brown leather accent chair adds contrast against the pale floors and walls.
In The Details: Round chandeliers work particularly well in open-plan spaces because the circular form echoes outward visually, helping define a seating area without the need for walls or dividers. In rooms with vaulted ceilings, hanging the fixture lower than expected draws the eye down and makes the space feel more intimate.
Warm Neutrals and Ceiling Fan Keep This Barndominium Bedroom Grounded

Soft beige upholstery on the platform bed anchors the space. Gold satin pillowcases catch natural light from black-framed doors. Vertical shiplap behind the bed adds subtle texture without visual weight. A bamboo plant and dark plaid throw introduce organic contrast against the pale wood floor.
Gold satin pillowcases catch natural light from black-framed doors.
Gold Fixtures and Marble Surfaces Give This Barndominium Bath a Polished Edge

Brass faucets and gold-framed mirror contrast against slate-blue cabinetry. Herringbone wall tile, a built-in lit niche, and marble countertops keep the palette cohesive without feeling cold or overdone.
- Lit niches cut into tub surrounds eliminate the need for freestanding caddies, keeping surfaces clear
- Brass fixtures age gradually to a warmer patina, reducing the need for frequent replacement or updates
- Herringbone tile on walls adds visual texture without requiring patterned floors that could overwhelm a smaller space
Gold Hardware and Herringbone Tile Make This Laundry Room Work Hard and Look Good

Gray upper cabinets, wood shelving with LED underlighting, side-by-side washers, and a warm butcher block countertop define the space.
Color Story: Gray and warm wood is a pairing that holds tension well — cool cabinetry pulls the eye up while the butcher block countertop anchors the lower half with warmth. The cream herringbone tile backsplash bridges both tones without competing with either. Gold hardware reads as an accent rather than a theme, which keeps the palette from tipping into excess.
Pin It

Dark board-and-batten siding and a metal roof give this barndominium its modern edge. The floor plan below shows three bedrooms, two bathrooms, an oversized two-car garage, a pantry, and dual covered porches front and back, all within a 66-foot-wide footprint.
