
Would you like to save this?
Specifications
- Sq. Ft.: 3,052
- Bedrooms: 4
- Bathrooms: 4.5
- Stories: 2
- Garage: 3
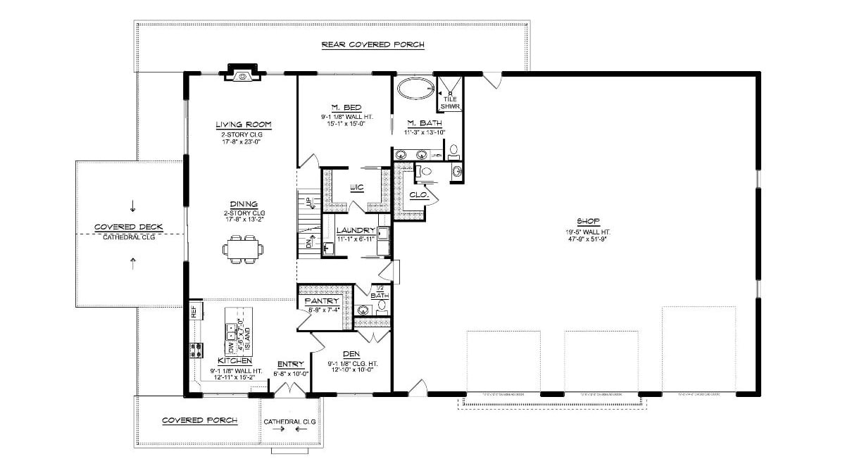
Main Level Floor Plan

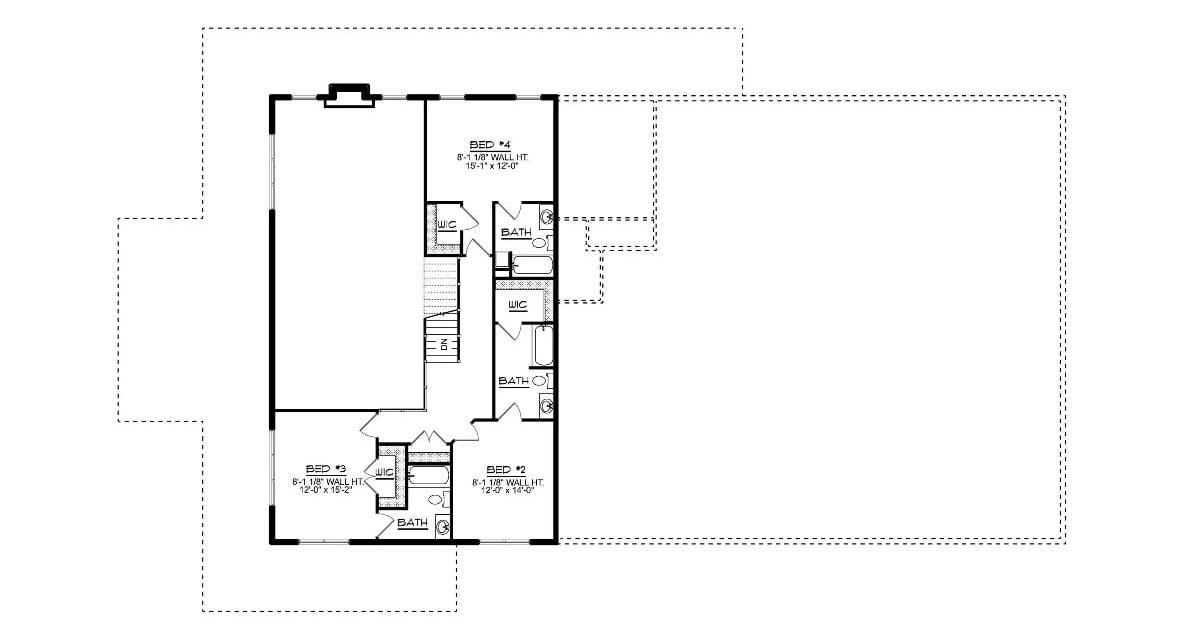
Second Level Floor Plan

๐ฅ Create Your Own Magical Home and Room Makeover
Upload a photo and generate before & after designs instantly.
ZERO designs skills needed. 61,700 happy users!
๐ Try the AI design tool here
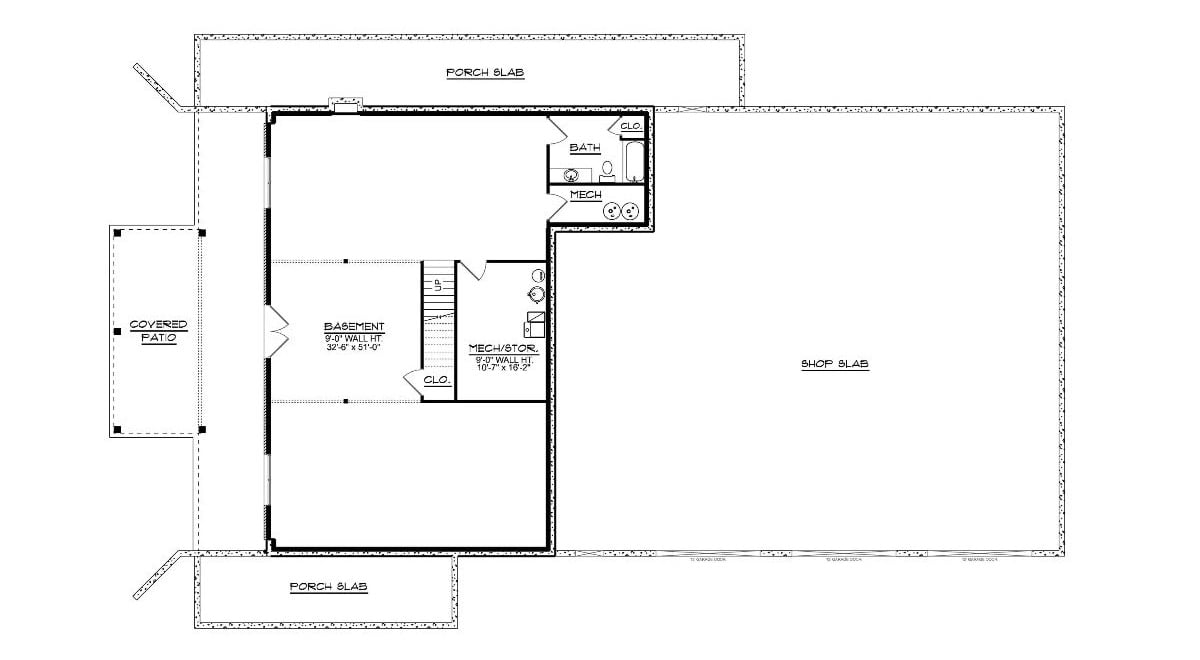
Lower Level Floor Plan

Front-Right View

Front-Left View

Left View

Would you like to save this?
Rear View

Kitchen

Kitchen

Kitchen and Dining Area

Dining Area

Dining Area

Living Room

Living Room and Dining Area

๐ฅ Create Your Own Magical Home and Room Makeover
Upload a photo and generate before & after designs instantly.
ZERO designs skills needed. 61,700 happy users!
๐ Try the AI design tool here
Upstairs Hall

Primary Bedroom

Primary Bedroom

Primary Bathroom

Primary Bathroom

Would you like to save this?
Bedroom

Bedroom

Basement

Details
This barndominium-style home pairs crisp farmhouse simplicity with an expansive, functional layout, featuring clean white siding, a dark metal roof, and bold garage doors that give the exterior a modern edge. The covered front entry adds warmth and character with timber-style accents and a sheltered place to welcome guests.
Inside, the kitchen, dining area, and living room connect in one bright central space, making it easy to cook, gather, and relax without feeling boxed in. A pantry sits close to the kitchen for added storage, while a den near the entry provides a flexible space for a home office, hobby room, or quiet retreat.
The primary suite is thoughtfully placed for privacy and includes a walk-in closet, a full bath, and a large tile shower. A laundry room and half bath are positioned nearby for convenience, especially when coming in from the attached shop.
Upstairs, the second floor is dedicated to three additional bedrooms, giving family members or guests their own private zone. Each bedroom includes convenient closet space and private bathrooms. This upper level keeps the home feeling flexible and future-ready, whether you need space for a growing household, visitors, or work-from-home living.
The oversized shop is a standout feature, offering generous room for vehicles, tools, equipment, and storage, with easy access to the home. The lower level expands the layout with a large basement area, plus a mechanical/storage room and a bathroom, leaving plenty of options for future finished space.
Pin It!

The House Designers Plan THD-12179
