
🔥 Would you like to save this?
Specifications
- Sq. Ft.: 3,147
- Bedrooms: 3
- Bathrooms: 3
- Stories: 2
- Garage: 2
[su_spacer]
In order to come up with the very specific design ideas, we create most designs with the assistance of state-of-the-art AI interior design software. Also, assume links that take you off the site are affiliate links such as links to Amazon. this means we may earn a commission if you buy something.
Main Level Floor Plan

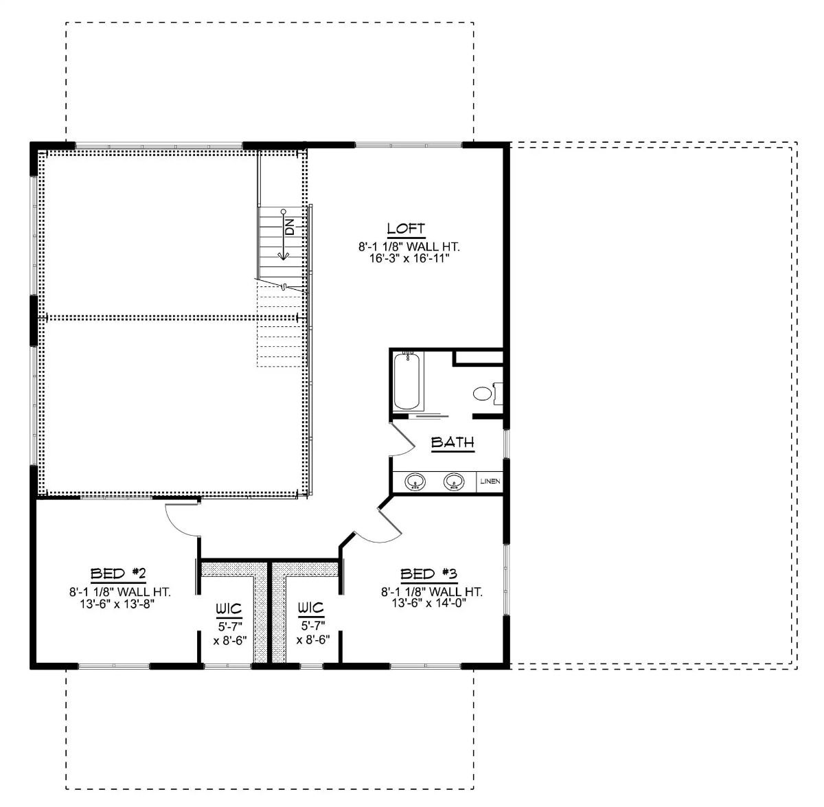
Second Level Floor Plan

[su_spacer]
Front-Left View
Rear-Left View

Rear-Right View

Front-Right View

Great Room

Kitchen

Kitchen

Primary Bedroom

Primary Bathroom

Primary Bathroom

Loft

[su_spacer]
Details
This modern farmhouse home features a bold, clean-lined exterior with dark vertical siding, expansive windows, and a low-profile roofline that gives it a contemporary edge. A covered front porch and extended rear patio create a strong connection between indoor and outdoor living spaces.
The main level is anchored by a two-story great room that flows directly into the dining area and kitchen, creating an open layout suited for everyday living and entertaining. The kitchen includes a large island and sits near the foyer for easy access, while an office at the front of the home offers a quiet workspace.
The primary bedroom is also located on the main level and includes a private bath and walk-in closet, set apart from the main living areas. A mudroom, laundry area, and direct access to the garage help keep daily routines organized.
Upstairs, two additional bedrooms are positioned along a shared bath, each with its own walk-in closet. A spacious loft overlooks the great room below, providing flexible space for lounging or recreation while maintaining an open connection to the main level.
Pin It!
The House Designers Plan THD-11943
