
🔥 Would you like to save this?
Specifications
- Sq. Ft.: 2,422
- Bedrooms: 2
- Bathrooms: 2.5
- Stories: 1
- Garage: 3
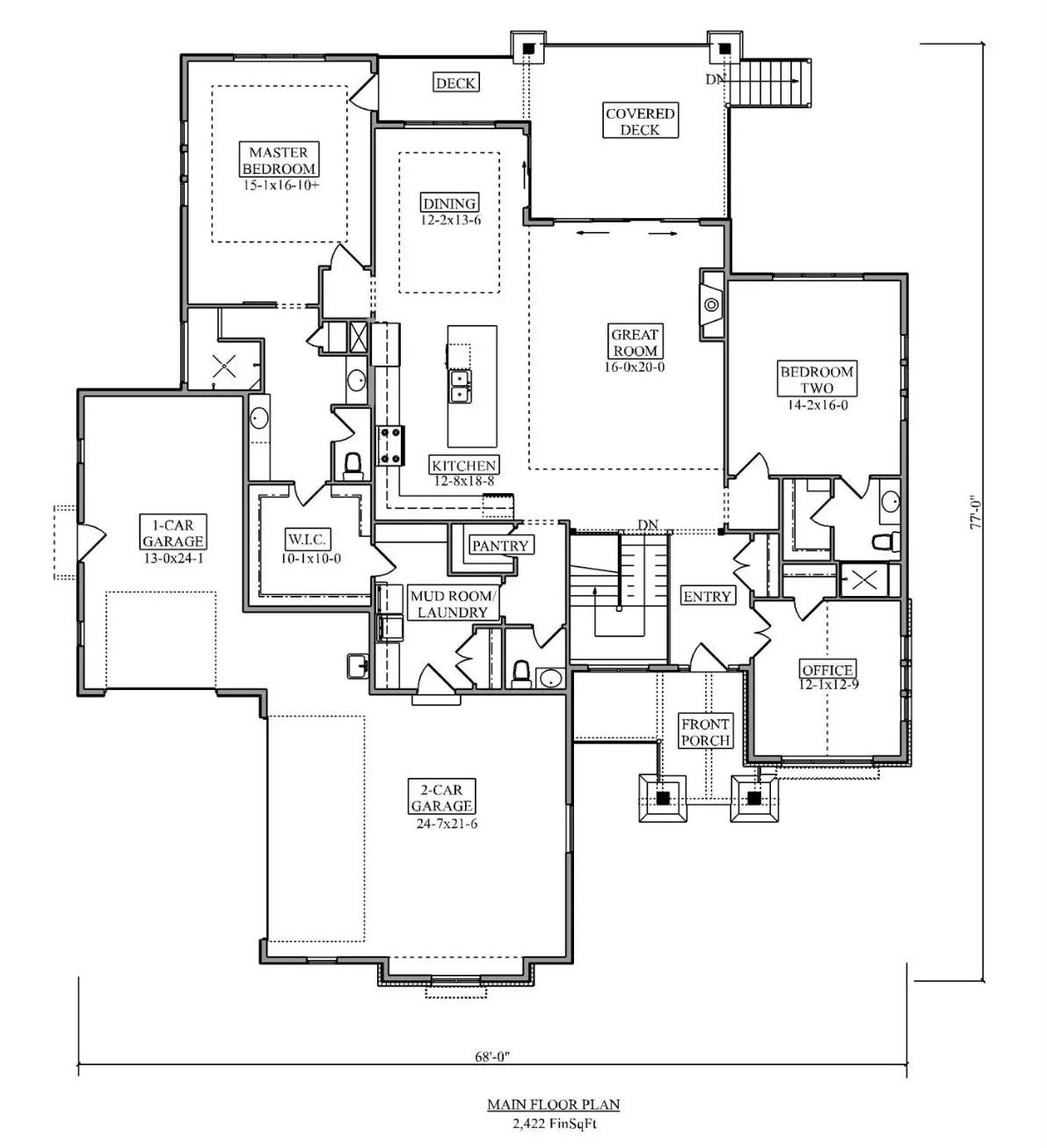
Main Level Floor Plan

In order to come up with the very specific design ideas, we create most designs with the assistance of state-of-the-art AI interior design software. Also, assume links that take you off the site are affiliate links such as links to Amazon. this means we may earn a commission if you buy something.
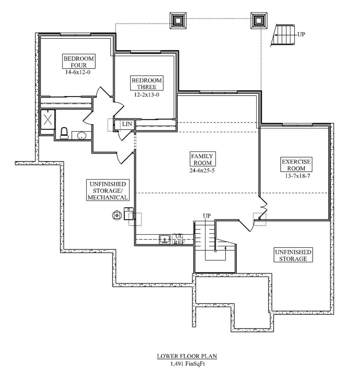
Lower Level Floor Plan

Front View
Rear View

Front Entry

Entry

Great Room

Great Room and Kitchen

Dining Room

Primary Bedroom

Primary Bathroom

Bathroom

Exercise Room

Details
This country-style home features a well-balanced exterior with layered gables, stone accents, and a covered front entry that gives it a solid, welcoming presence. The combination of varied rooflines and attached garage space creates a design that feels substantial while remaining cohesive.
The main level is organized around an open great room that connects directly to the kitchen and dining area, forming a central hub for everyday living. The kitchen is centered on a large island and includes a pantry, with clear flow into the dining space and access to a covered deck for extended living.
The primary bedroom is privately positioned and includes a dedicated bathroom and walk-in closet. A secondary bedroom, full bathroom, and a separate office are located on the opposite side of the home, offering flexibility for guests or work-from-home needs. A mudroom and laundry area sit between the living spaces and garages, supporting a smooth daily routine.
The lower level expands the home with a large family room designed for casual gatherings and recreation. Two additional bedrooms share a nearby bathroom, while a dedicated exercise room adds functional versatility. Storage and mechanical spaces are set apart from the finished areas, keeping the lower level organized and adaptable over time.
Pin It!
The House Designers Plan THD-12059
