
🔥 Would you like to save this?
Specifications
- Sq. Ft.: 1,360
- Bedrooms: 2
- Bathrooms: 1
Floor Plan

In order to come up with the very specific design ideas, we create most designs with the assistance of state-of-the-art AI interior design software. Also, assume links that take you off the site are affiliate links such as links to Amazon. this means we may earn a commission if you buy something.
The main floor spans 39 by 38 feet and organizes two bedrooms, a shared bathroom, and a walk-in closet along the left wing. The open kitchen connects to a cathedral-ceiling living room at the center. An office, mudroom, and foyer handle entry traffic, while a rear patio extends the kitchen toward the outdoors.
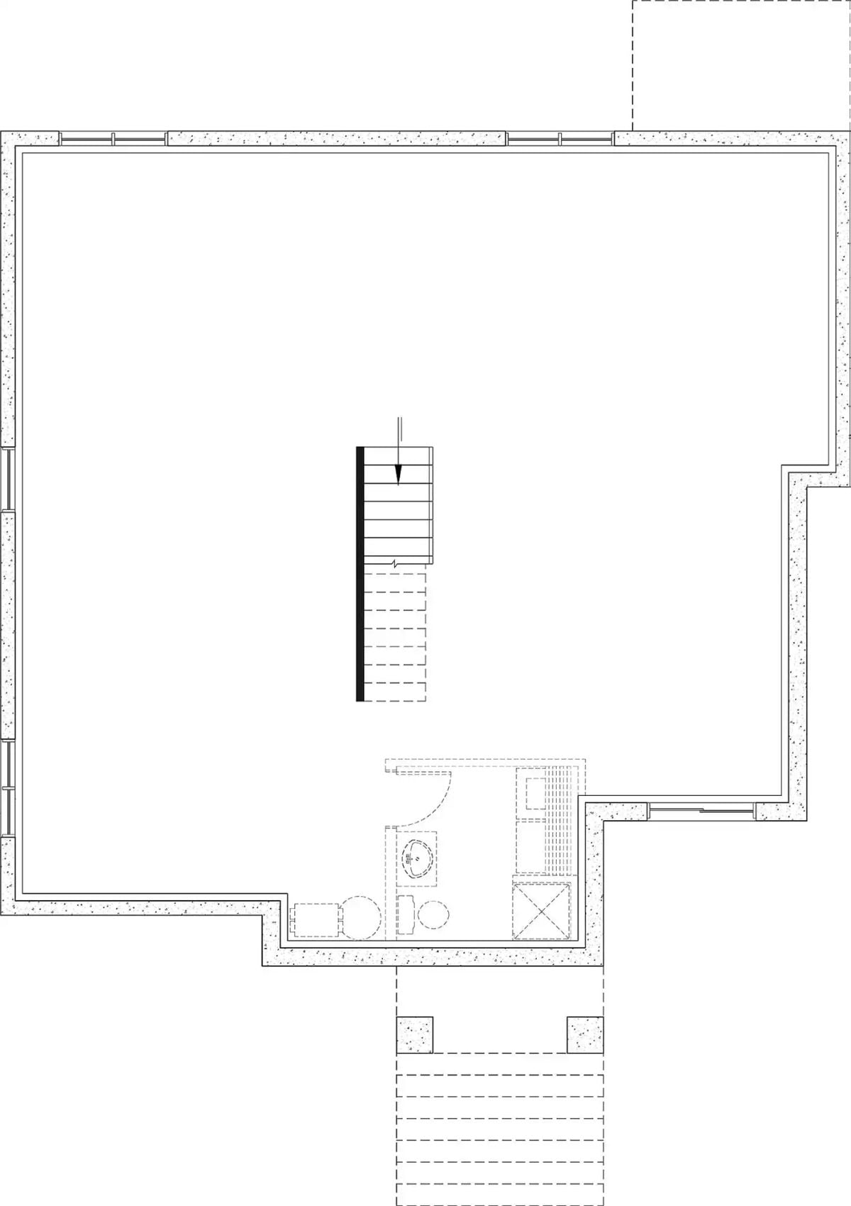
Floor Plan

The basement level reveals a wide open main space with a central staircase descending from above. A full bathroom with tub, toilet, and shower occupies the lower center zone. A covered patio extends from the south facade. Dashed lines indicate future or unfinished areas, suggesting flexible expansion potential beneath the footprint.
Color Story: Keeping interior walls off the basement perimeter creates a blank canvas that works equally well as a recreation room, home gym, or guest suite. Neutral concrete or luxury vinyl plank flooring in cool gray tones would hold up to below-grade moisture while keeping the space feeling open and grounded.
Candle-Style Lantern Anchors a Hallway Built for Easy Living
Dark hardwood floors run through a light-filled hallway connecting to an open kitchen and living area. A black cage pendant, potted tree, and wood stool add warmth without crowding the space.
In The Details: Transom windows above interior doorways, like the one visible above the passage to the kitchen, borrow natural light from adjoining rooms and help smaller corridors feel open without requiring additional electrical lighting.
Exposed Beam Ceiling and Cream Sofa Define an Upper-Level Living Space

Vaulted ceilings with raw wood beams make upper-level living rooms feel far more spacious than their square footage suggests.
Cream sofa, wood coffee table, and black-frame windows pull natural light deep into this warm, neutral sitting area.
Lantern Pendants and Warm Wood Tones Ground an Open Kitchen Layout

Two iron lantern pendants hang over a wood-base island topped with white stone. Shaker cabinets in off-white pair with a natural stone backsplash. Boucle bar stools, stainless appliances, and a custom hood round out a kitchen built for both cooking and gathering.
Pro Tip: Mixing cabinet finishes, white uppers with a wood-toned island, draws the eye downward and gives large kitchens a sense of visual weight at counter level. It also lets you introduce warmth without committing to dark cabinetry throughout. Designers often treat the island as a piece of furniture rather than a built-in for exactly this reason.
Moving into the dining area reveals how natural light shapes the mood of everyday gathering spaces.
Rounded Chairs and a Wood Table Turn a Corner Dining Nook Into a Social Hub

Linen drapes frame black-trim windows on two walls. Oval pedestal table sits beneath a candelabra chandelier. Upholstered chairs with curved backs add softness against wood plank flooring.
Vessel Sink and Freestanding Tub Bring Contrast to a Black-and-White Bathroom

White subway tile, black upper walls, and a stone vessel sink create sharp contrast. Matte black fixtures pair with a freestanding soaking tub and black-framed windows overlooking trees.
Pin It

Exterior rendering shows a cottage-style facade above a detailed floor plan measuring 39 by 38 feet.
🔥 Would you like to save this?
This is a Contemporary Twist On a 2-Bedroom Traditional Cabin-Style Home – Check Out the Floor Plan and Interior
Sq. Ft.: 1,323 | Bedrooms: 2 | Bathrooms: 2
Contemporary-Style 2-Bedroom Home with Open Living Space and Oversized RV Garage (Floor Plan)
Sq. Ft.: 1,595 | Bedrooms: 1-2 | Bathrooms: 2.5
Welcome to 1,414 Sq. Ft. of Style: A 2 Bedroom Cabin Home with Open Living and a Wraparound Deck (Floor Plan Inside)
Sq. Ft.: 1,414 | Bedrooms: 2 | Bathrooms: 2.5
Cottage-Style 2-Bedroom Cumberland Home with Covered Front and Back Porches (Floor Plan)
Sq. Ft.: 988 | Bedrooms: 2 | Bathrooms: 2
Cottage-Style 2-Bedroom Allenwood ADU with Covered Patio and Double Garage (Floor Plan)
Sq. Ft.: 837 | Bedrooms: 2 | Bathrooms: 1
