
🔥 Would you like to save this?
Specifications
Sq. Ft.: 2,233
Bedrooms: 4
Bathrooms: 3
Stories: 2
Garage: 2
In order to come up with the very specific design ideas, we create most designs with the assistance of state-of-the-art AI interior design software. Also, assume links that take you off the site are affiliate links such as links to Amazon. this means we may earn a commission if you buy something.
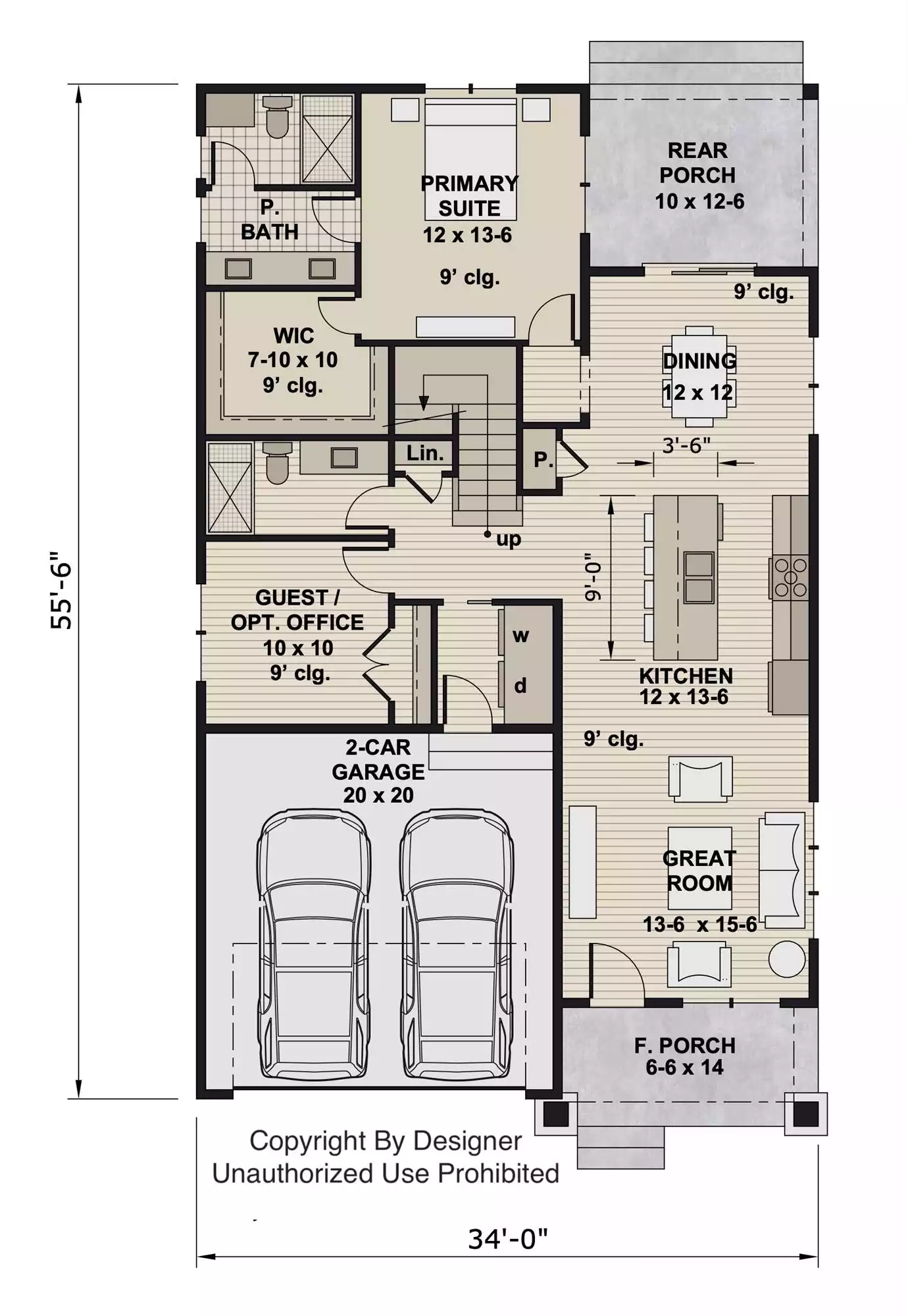
First Level Floor Plan

Second Level Floor Plan

Great Room
Great Room

Dining Room

Kitchen and Dining Room

Kitchen

Kitchen

Hallway

Loft

Primary Bedroom

Bedroom

Bedroom

Bedroom
Primary Bathroom

Bathroom

Bathroom

Primary Closet

Details
With 2,233 square feet of heated living space, this 4-bedroom, 3-bath home offers a well-balanced layout that supports both everyday living and entertaining.
The open floor plan brings the great room, dining area, and kitchen together, creating a bright and connected main living space. The kitchen features a central island, pantry, and peninsula eating bar that provide plenty of prep space and casual seating.
A main-floor primary suite includes a walk-in closet and a bathroom with double vanity sinks for added comfort. Split bedrooms help maintain privacy, while a dedicated home office offers a quiet place to work or study.
Practical features such as a first-floor laundry room and mud room help keep daily routines organized. Covered front and rear porches add welcoming outdoor spaces that extend the home’s livability.
Pin It!

The House Designers Plan 11711
