
🔥 Would you like to save this?
Specifications
Sq. Ft.: 4,493
Bedrooms: 5
Bathrooms: 4.5
Stories: 2
Garage: 4
In order to come up with the very specific design ideas, we create most designs with the assistance of state-of-the-art AI interior design software. Also, assume links that take you off the site are affiliate links such as links to Amazon. this means we may earn a commission if you buy something.
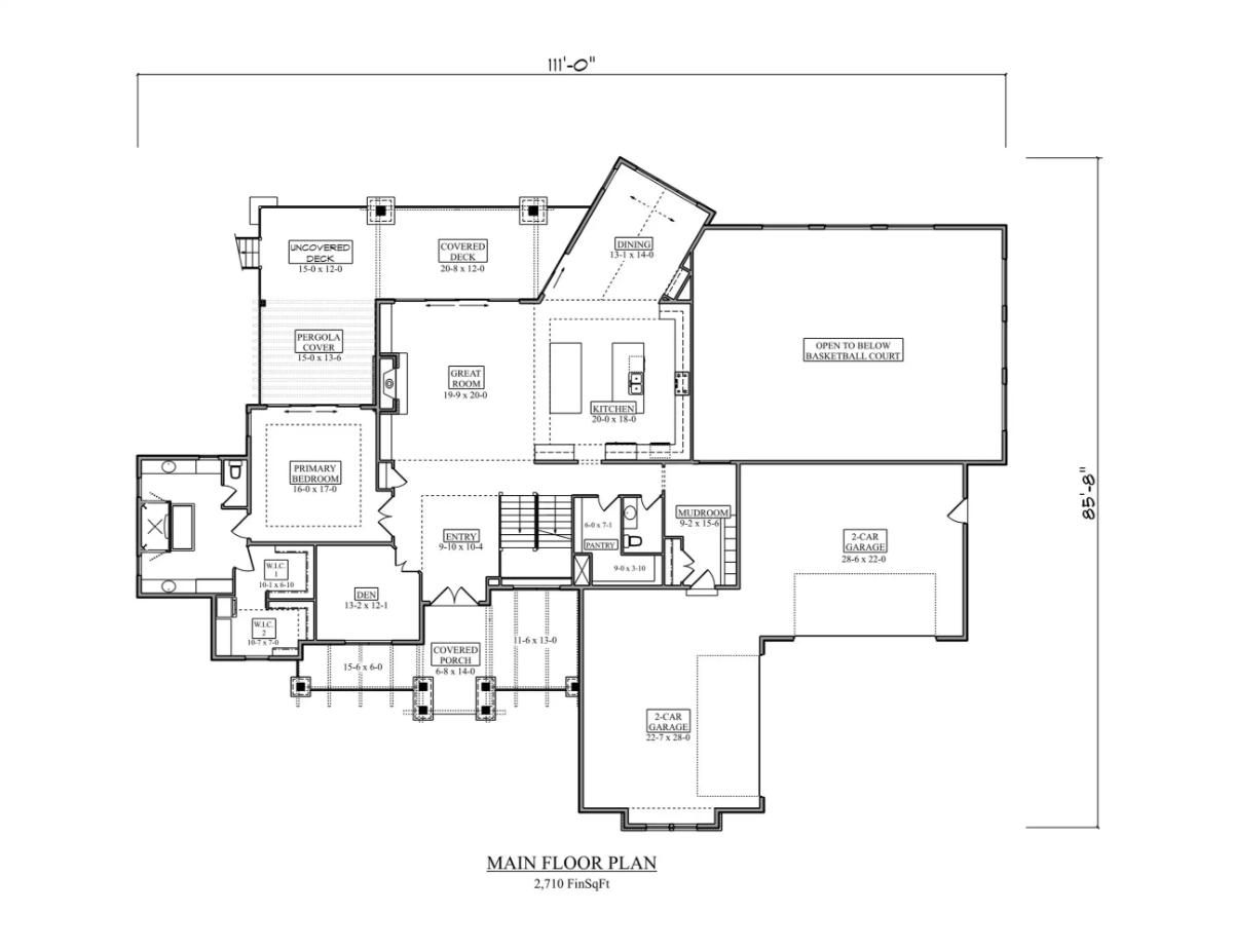
Main Level Floor Plan

Upper Level Floor Plan

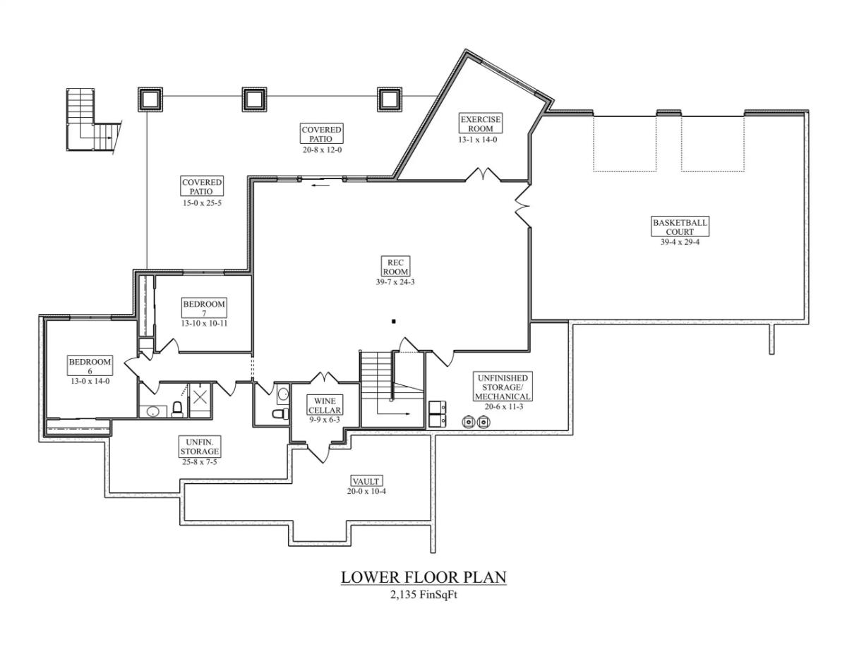
Lower Level Floor Plan
Front View

Rear View

Great Room

Kitchen

Kitchen

Kitchen

Stairs

Primary Bedroom

Primary Bathroom

Recreation Room

Indoor Basketball Court
Details
This 4,493 square foot home offers a warm and spacious layout designed for comfortable family living. The main level includes an open floor plan that blends the great room, dining area, and a well-planned L-shaped kitchen with a generous island and butler’s pantry.
The primary suite features separate closets, a double vanity bath, and a relaxing tub and shower setup that brings quiet comfort to the first floor.
Upstairs, additional bedrooms are split for privacy, supported by a second laundry room and a loft that works well for homework or lounging.
The lower level adds an exercise room, a rec room, and unfinished space perfect for storage or future ideas, along with a dedicated wine cellar.
Covered front and rear porches extend living outdoors, offering places to unwind throughout the year. With flexible garage entry options and thoughtful interior flow, this home blends comfort, function, and everyday ease in a welcoming way.
Pin It!

The House Designers Plan 12058
