
🔥 Would you like to save this?
Specifications
- Sq. Ft.: 6,653
- Bedrooms: 5
- Bathrooms: 4.5
Floor Plan

In order to come up with the very specific design ideas, we create most designs with the assistance of state-of-the-art AI interior design software. Also, assume links that take you off the site are affiliate links such as links to Amazon. this means we may earn a commission if you buy something.
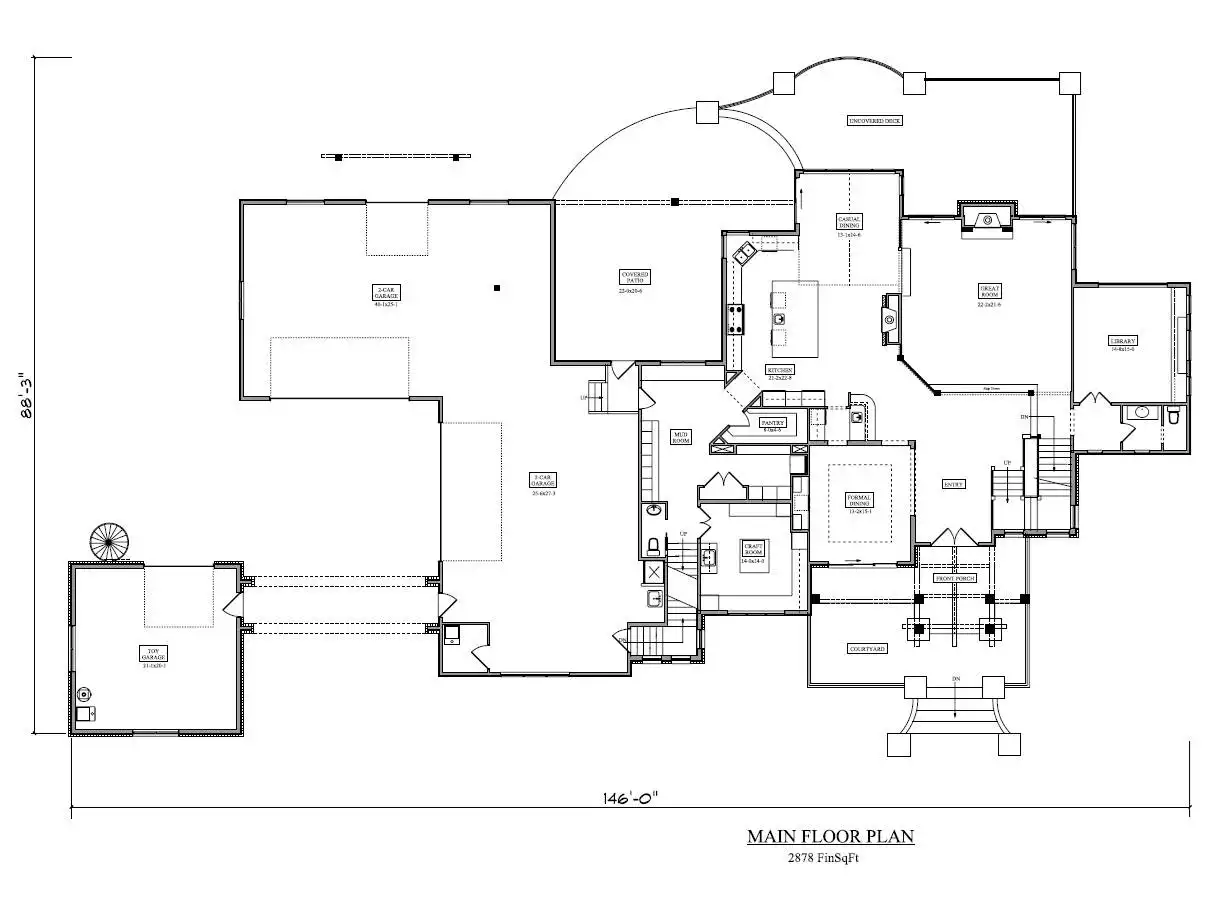
This main floor plan shows 2,878 square feet with an open kitchen and great room layout. The design includes a garage, multiple covered porches, and stairs leading to upper bedrooms. The width measures 146 feet across.
Floor Plan

The upper floor contains five bedrooms with multiple ensuite bathrooms. A master bedroom anchors the left wing with a private bath and walk-in closet. Additional bedrooms spread across the right side, each with access to balconies. Two staircases provide convenient circulation between levels throughout the spacious 3,685 square foot layout.
Fun Fact: Corner lot homes like this one often feature wrap-around porches and multiple balconies to take advantage of views from two street-facing sides. This design maximizes natural light and outdoor living space while maintaining privacy in the bedrooms positioned away from the street.
Floor Plan
Lower level features media and billiard rooms, mudroom, guest room with private bath, unfinished storage, and convenient laundry access. Multiple staircases connect floors efficiently.
European-Style Luxury Estate Showcasing Stone and Stucco at Twilight

White stucco and natural stone create a dramatic facade with multiple gables and peaked rooflines. Large windows glow warmly against the evening sky. Manicured landscaping frames a circular paver courtyard leading to brick stairs and covered entry porches.
Grand Stone and Stucco Facade with Illuminated Windows and Metal Roofing

Rough-cut stone columns frame an arched entryway flanked by lantern-style light fixtures. Warm interior lighting glows through multi-pane windows across two stories. Metal roofing accents complement dark asphalt shingles. Ornamental grasses and red flowers add color to landscaped beds along brick steps and paver walkways beneath dramatic evening skies.
Open-Concept Living Room with Modern Staircase and Forest Artwork

Gray velvet sofa anchors seating area featuring tall triptych paintings above. Dark hardwood floors contrast white walls. Open staircase with metal railings ascends nearby.
Vaulted Living Room with Stone Fireplace and Chevron-Patterned Accent Chairs

Exposed dark beams frame a dramatic stone fireplace flanked by glass doors. Gray chevron chairs, teal ottomans, and curved sofas create comfortable conversation zones throughout.
Moving from gathering spaces to the culinary heart of the home, we discover where function meets refined style.
IMAGE_TYPE: room
Expansive Kitchen Island with Marble Countertops and Statement Chandeliers

Five upholstered bar stools in taupe velvet line a dark wood island topped with polished marble. Two ornate chrome chandeliers hang above. White cabinetry contrasts dark hardwood floors, while subway tile backsplash frames the cooking zone.
Vaulted Ceiling Kitchen with Dark Wood Beams and Crystal Chandeliers

Dark wood beams create dramatic contrast against white shiplap ceilings. A large island seats four gray velvet stools with circular cutouts. White cabinetry surrounds the perimeter, complemented by subway tile backsplash and dark hardwood floors. Crystal chandeliers add sparkle overhead, while a secondary island provides additional workspace near windows.
Formal Dining Room and Kitchen Bar with Exposed Brick and Glass Cabinetry

Luxurious dining space features tufted velvet chairs and ornate chandelier alongside a kitchen bar with red brick base, white cabinetry, and marble countertops. Pendant lighting highlights both zones. Contemporary barstools offer casual seating at the brick-accented breakfast bar.
Multi-Level Floating Staircase with Vertical White Balusters and Skylight

Rich espresso wood treads and handrails contrast beautifully against crisp vertical white spindles. Natural light floods down from an overhead skylight. Open risers create an airy feeling. Black-framed windows line the stairwell. Gallery wall displays framed photographs beneath the ascending steps.
Master Bedroom with Tray Ceiling, Charcoal Walls, and Emerald Seating Nook

Charcoal walls contrast with white trim around windows and doors. Emerald velvet ottomans and armchairs add bold color. A tray ceiling features wood accents and a spinning fan.
Waterfront Sitting Area Framed by Dark Built-ins and White Fireplace Mantel

Deep green velvet armchairs anchor a lakefront nook with brown carpet, black shelving, and elegant white millwork detailing.
Freestanding Soaking Tub Centered Between Triple Windows and Dual Vanities
A sculptural white soaking tub commands the center of this spa-like bathroom, flanked by matching dark wood vanities with marble countertops. Three windows with bronze frames offer natural light and views. The marble floor features diagonal black inset strips creating geometric patterns. Wall sconces and chrome fixtures complete the symmetrical design.
Try This: Install motorized window shades for privacy without sacrificing the view. Choose a freestanding tub filler with a hand shower attachment to maintain the clean, sculptural look while adding practical functionality for rinsing and cleaning.
Recreation Room with Stone Fireplace, Game Tables, and Brown Leather Seating

Hardwood floors anchor this spacious entertaining area filled with ping-pong and foosball tables. Brown leather curved chairs cluster on a botanical rug near the stone fireplace. Pendant lighting and recessed fixtures brighten white cabinetry.
Craft Room with Pegboard Organizer and White Shaker-Style Storage

White cabinetry lines the walls, providing ample storage. Pegboard displays colorful ribbons and crafting supplies. The central island features a speckled countertop. Exposed brick adds warmth. Purple woven baskets organize materials. Chrome hardware accents each drawer. Glass-front cabinets showcase vibrant artwork. Industrial pendant lighting illuminates the workspace.
Pin It

Grand European-style home exterior showcases stone and stucco facade above main floor plan revealing 2,878 square feet of living space.
🔥 Would you like to save this?
Come Tour This 5-Bedroom European Carriage Home with a 3-Car Garage and Jack & Jill Bathroom (4,200+ Sq. Ft. Floor Plan Included)
Sq. Ft.: 4,255 | Bedrooms: 5 | Bathrooms: 4
European-Style 5-Bedroom Home with Covered Patio and Basement Expansion (Floor Plan)
Sq. Ft.: 3,049 | Bedrooms: 3 | Bathrooms: 2.5
Transitional 5-Bedroom European Home with Loft and Bonus Playroom (Floor Plan)
Sq. Ft.: 3,630 | Bedrooms: 4-5 | Bathrooms: 4.5
5-Bedroom European-Style Country Home with Balcony and Finished Basement (Floor Plan)
Sq. Ft.: 6,403 | Bedrooms: 5 | Bathrooms: 6
Check Out This Must See 5-Bedroom Home: Incredible Design, Loft Space, and a 2,656 Sq. Ft. Floor Plan
Sq. Ft.: 2,656 | Bedrooms: 3-5 | Bathrooms: 2.5

