
🔥 Would you like to save this?
Specifications
Sq. Ft.: 3,171
Bedrooms: 4
Bathrooms: 3.5
Stories: 2
Garage: 3
In order to come up with the very specific design ideas, we create most designs with the assistance of state-of-the-art AI interior design software. Also, assume links that take you off the site are affiliate links such as links to Amazon. this means we may earn a commission if you buy something.
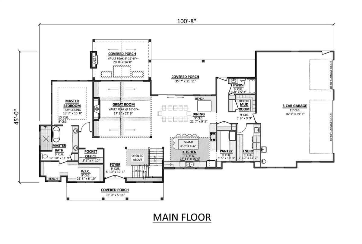
Main Floor Plan

Second Floor Plan

Front-Right View
Front-Left View

Rear View

Great Room

Great Room

Dining Room

Dining Room

Kitchen

Kitchen

Stairs

Primary Bedroom

Primary Bedroom
Details
This charming 3,171 square feet home is designed to bring comfort, connection, and easy everyday living to families who enjoy warm and inviting spaces. The open floor plan features a spacious L-shaped kitchen with a large island, a peninsula eating bar, and a butler’s pantry, offering both practicality and a natural gathering spot.
A vaulted great room with a fireplace enhances the home’s cozy appeal, while the foyer and dining room create a smooth flow for both daily routines and special occasions. The main-floor primary suite includes a walk-in closet and a separate tub and shower, with split bedrooms offering privacy for everyone.
A home office and mud room add convenience, while the upper level extends the living space with flexible rooms for work or play. Outdoor living shines with a covered front porch, covered rear porch, and a full outdoor kitchen that elevates entertaining.
This home blends thoughtful design and warm livability, creating a place where family life feels naturally welcoming and effortlessly comfortable.
Pin It!

The House Designers 11907
