
🔥 Would you like to save this?
Specifications
- Sq. Ft.: 2,782
- Bedrooms: 4
- Bathrooms: 3
- Stories: 3
- Garage: 2
First Level Floor Plan

In order to come up with the very specific design ideas, we create most designs with the assistance of state-of-the-art AI interior design software. Also, assume links that take you off the site are affiliate links such as links to Amazon. this means we may earn a commission if you buy something.
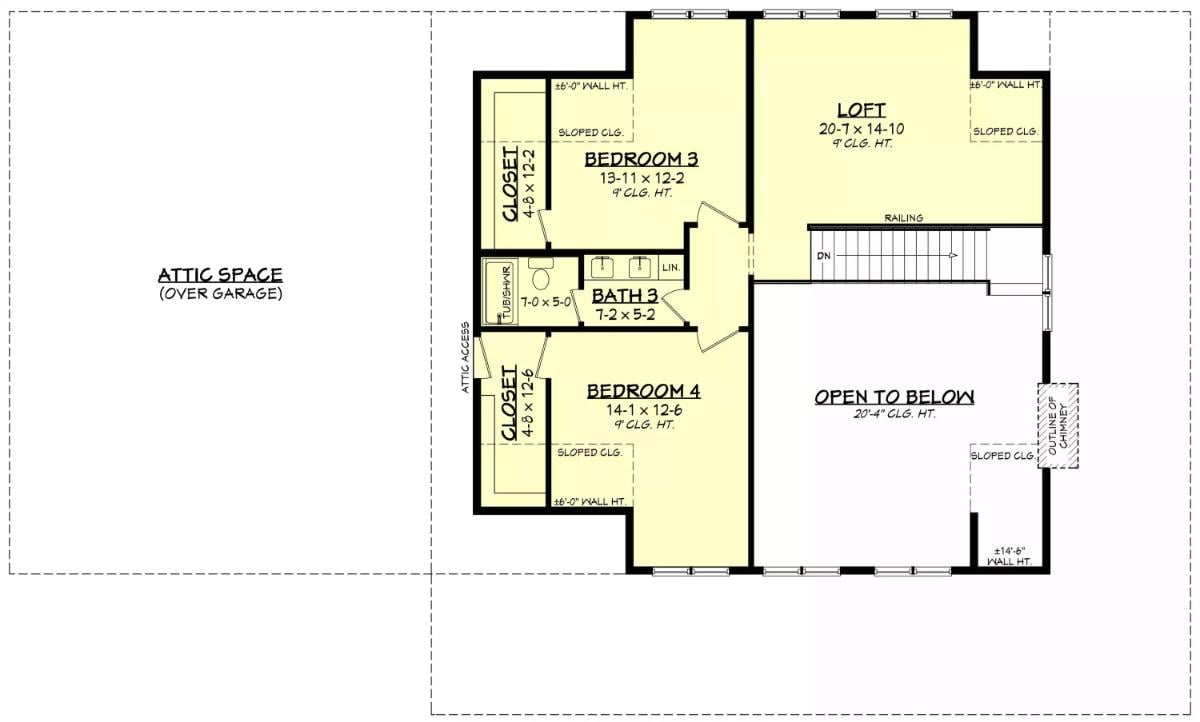
Second Level Floor Plan

Front View
Living Room

Dining Room

Kitchen

Primary Bedroom

Primary Bathroom

Front View

Left View

Right View

Rear View

Details

