
🔥 Would you like to save this?
Specifications
- Sq. Ft.: 2,174
- Bedrooms: 3
- Bathrooms: 2.5
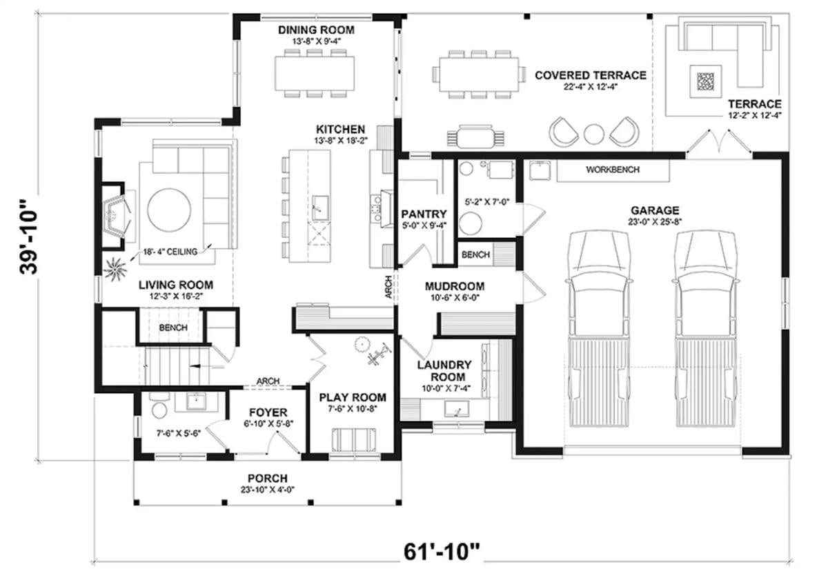
Floor Plan: The Mudroom Sits Between Garage and Pantry So Groceries Never Hit the Floor

In order to come up with the very specific design ideas, we create most designs with the assistance of state-of-the-art AI interior design software. Also, assume links that take you off the site are affiliate links such as links to Amazon. this means we may earn a commission if you buy something.
The mudroom connects directly to both the garage and pantry, creating a drop zone that actually makes sense for unloading. The primary suite occupies the rear corner for privacy. Living areas flow from foyer through kitchen to covered terrace. A playroom and laundry flank the mudroom hallway.
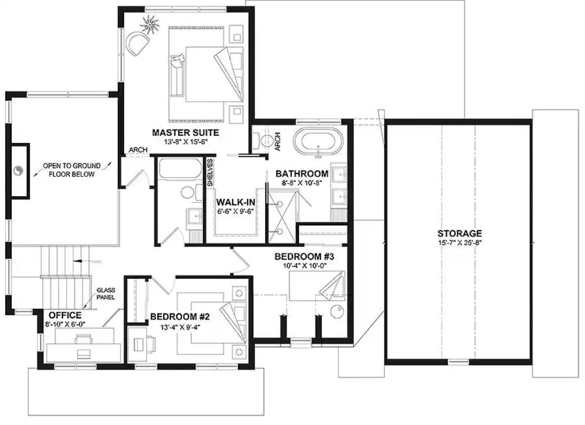
Upper Floor Plan: The Master Suite Gets Its Own Wing While Three Bedrooms Share the Other

Master suite isolation creates a parent retreat separated by the stairwell from bedrooms two and three. A shared bathroom with dual vanities sits between the kids’ rooms, reducing morning traffic jams. The walk-in closet connects directly to the master bath. Bedroom three includes a private closet and dedicated access to the hall bath. An office overlooks the ground floor through a glass panel, borrowing light and visual connection. Storage spans nearly the length of the garage below.
Floor-to-Ceiling Stone Fireplace Anchors a Two-Story Volume Without Shrinking
Whitewashed stone runs from hearth to vaulted ceiling, grounding vertical space. Gray sectionals frame a round wood coffee table. Abundant windows and clerestory glazing brighten oak floors.
A Geometric Brass Chandelier Anchors the Dining Table Without Blocking Sightlines

Brass tubing forms an open cube above this oak dining table, defining the zone while preserving views through floor-to-ceiling windows. White linen drapes soften the glass walls on three sides. Oak chairs with cream upholstered seats echo the table’s light wood grain. A neutral rug grounds the arrangement. Natural light washes across the pale oak floor, and greenery visible outside extends the room’s calm palette.
Three Pendant Lights With Brass Frames Mark the Island as Command Center

Pendant fixtures hang from brass rods, their white shades trimmed with metal frames that echo the faucet finish below. Gray quartz countertops extend across a wood-clad island where four cane-back stools pull up to the longer edge. White cabinetry wraps the perimeter, joined by a tall oak hutch with ribbed glass doors on the left wall. Open shelving holds cutting boards and crocks near the range.
Canopy Bed Frame Creates Architecture Inside the Bedroom Where the Ceiling Stays Flat

A four-post canopy bed in dark walnut defines a room within a room, imposing vertical structure and spatial definition without curtains or draping. White walls and a neutral ceiling keep the backdrop calm. Wood flooring runs throughout, grounding the furniture in warmth. Sconces flank a mirror above a low dresser, balancing task lighting with ambiance. An upholstered bench sits at the foot of the bed, adding soft seating in a natural linen tone.
Stone Wall Wraps the Tub Alcove So the View Stays Framed and Protected

Stone surrounds the freestanding tub on three sides, creating a niche beneath a white window that overlooks greenery. Wood beams cross overhead. Black fixtures and a wood vanity top balance the neutral palette.
Black Board-and-Batten Siding Grounds This Modern Farmhouse in Shadow

Dark vertical siding wraps both stories, contrasting with black-framed windows that punch through in grid patterns. Large glass panels on the lower level extend the interior outward. Ornamental grasses soften the foundation line while mature trees frame the roofline and gabled forms above.
Pin It

🔥 Would you like to save this?
Step Inside This 3-Bedroom French Country Home with a Double Garage and an Upstairs Bonus Room (2,487 Sq. Ft. Floor Plan)
Sq. Ft.: 2,487 | Bedrooms: 3 | Bathrooms: 2
3-Bedroom Modern Home with Open Living Space and Finished Basement (Floor Plan)
Sq. Ft.: 1,740 | Bedrooms: 3 | Bathrooms: 2.5
Modern-Style 3-Bedroom Barndominium with Flex Space and Open Loft (Floor Plan)
Sq. Ft.: 2,583 | Bedrooms: 3 | Bathrooms: 2
Tour The 1,956 Sq. Ft. Unison Creek Craftsman Ranch Home with Blue Gable Detailing (Floor Plan Included)
Sq. Ft.: 1,956 | Bedrooms: 3 | Bathrooms: 2
Come Inside This Inviting 1,614 Sq. Ft. 3-Bedroom Traditional Home with a Contemporary Touch (View the Detailed Floor Plan Sketches)
Sq. Ft.: 1,614 | Bedrooms: 3 | Bathrooms: 2.5

