
🔥 Would you like to save this?
Specifications
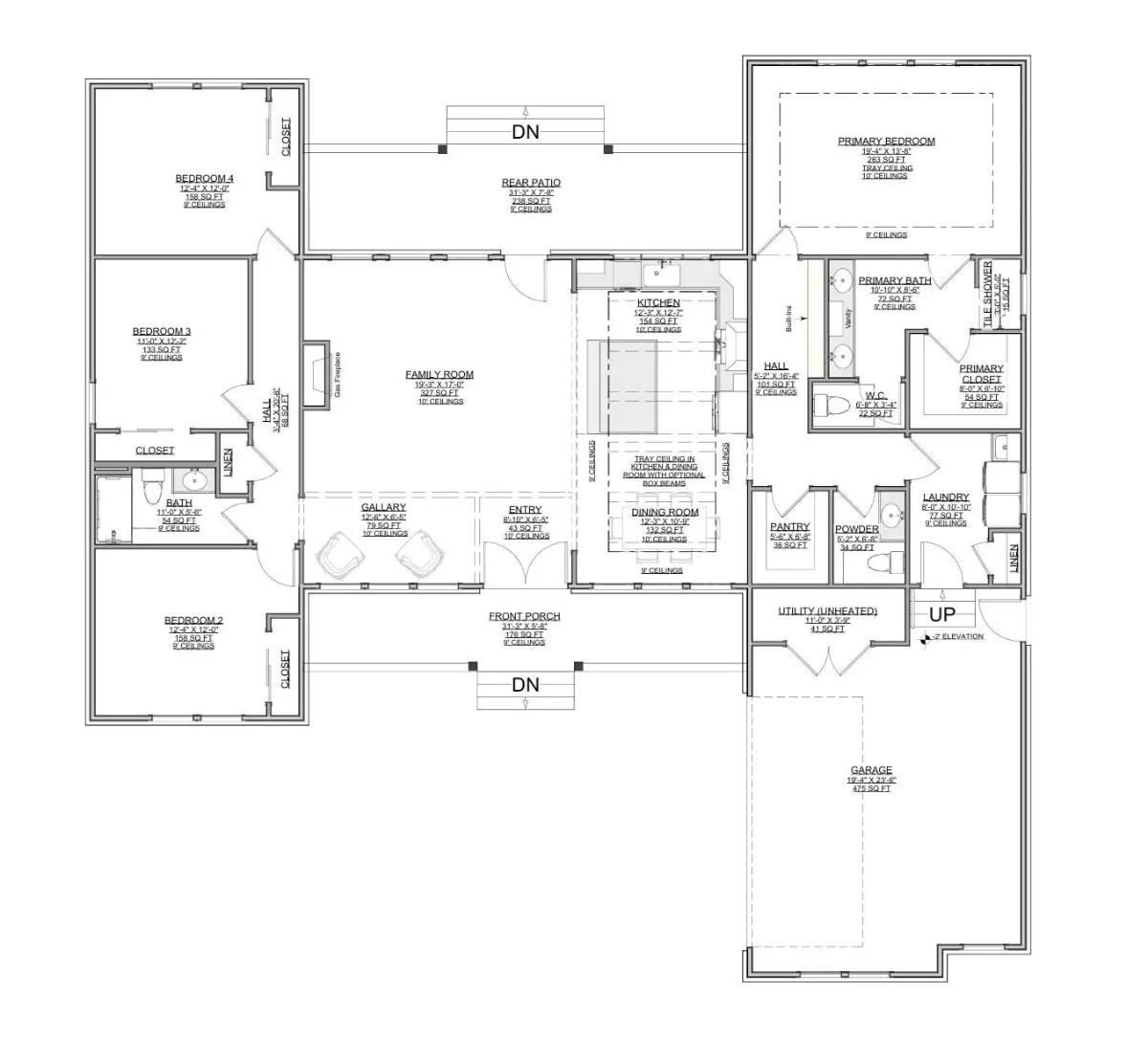
Sq. Ft.: 2,230
Bedrooms: 4
Bathrooms: 2.5
Stories: 1
Garage: 2
In order to come up with the very specific design ideas, we create most designs with the assistance of state-of-the-art AI interior design software. Also, assume links that take you off the site are affiliate links such as links to Amazon. this means we may earn a commission if you buy something.
Main Floor Plan

Side View

Side View
Rear View

Living Room

Living Room and Kitchen

Dining Room

Dining Room and Kitchen

Primary Bedroom

Primary Bathroom

Details
With 2,230 square feet, this single-level plan uses its space wisely to create an inviting layout centered around comfortable family living. The kitchen brings together an L-shaped design, a peninsula eating bar, a butler’s pantry, and a large island that opens easily into the family room.
Split bedrooms give the primary suite extra privacy, while the remaining rooms sit together on the opposite side of the home. The dining room sits close to the kitchen, offering a warm space for meals and gatherings.
A mud room and main-floor laundry help streamline daily routines, keeping the home organized. Outdoor living spaces and a wide rear porch extend the home’s living area and support relaxed afternoons outside.
With a layout designed for easy living and effortless hosting, this plan creates a warm and welcoming place to come home to.
Pin It!

The House Designers Plan 11959
