
Would you like to save this?
Specifications
Sq. Ft.: 3,416
Bedrooms: 3
Bathrooms: 3.5
Stories: 2
Garage: 2
Main Level Floor Plan

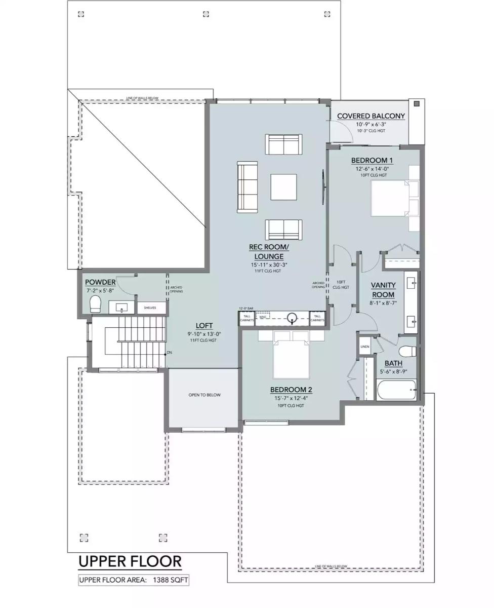
Upper Level Floor Plan

๐ฅ Create Your Own Magical Home and Room Makeover
Upload a photo and generate before & after designs instantly.
ZERO designs skills needed. 61,700 happy users!
๐ Try the AI design tool here
Basement Plan

Rear View

Dining and Living Room

Kitchen

Would you like to save this?
Front Elevation

Rear Elevation

Details
This 3,416 square foot home presents three bedrooms and three and a half bathrooms arranged for easy family living. The L-shaped kitchen includes an island, peninsula, and walk-in pantry, flowing naturally into the open dining and family areas.
Vaulted ceilings and a striking two-story volume add brightness and a welcome sense of space. The main-floor primary suite offers a double vanity, a separate tub and shower, and a comfortable walk-in closet.
Additional spaces, such as a home office, loft, mud room, and rec room, provide flexibility for work and play. With covered porches, a balcony, and an inviting outdoor living space, this home offers a relaxing environment perfect for gathering and unwinding.
Pin It!

The House Designers Plan 12012
