
🔥 Would you like to save this?
Specifications
- Sq. Ft.: 3,813
- Bedrooms: 3
- Bathrooms: 3.5
Floor Plan

In order to come up with the very specific design ideas, we create most designs with the assistance of state-of-the-art AI interior design software. Also, assume links that take you off the site are affiliate links such as links to Amazon. this means we may earn a commission if you buy something.
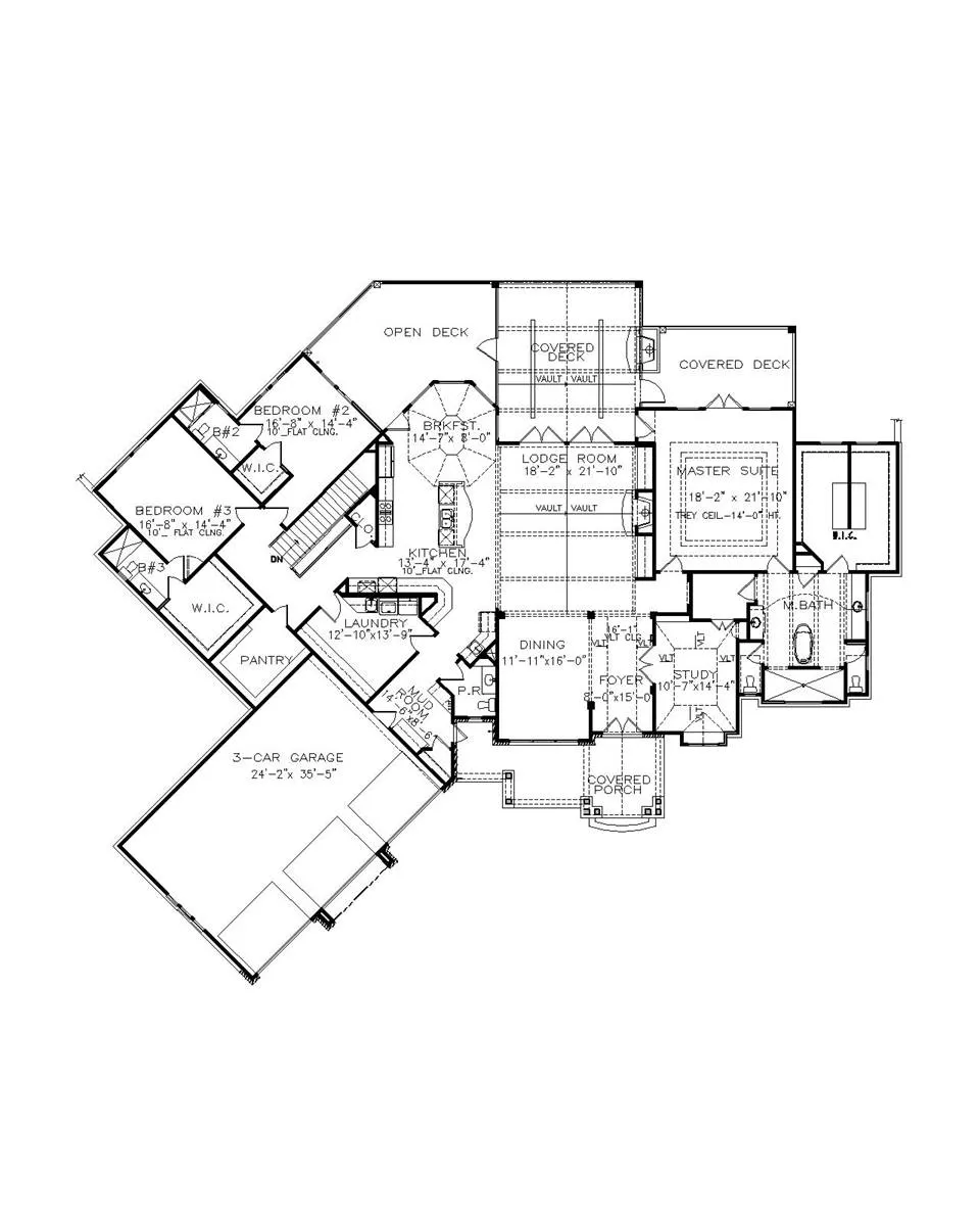
This open floor plan showcases three bedrooms with walk-in closets positioned on the left wing. The central living area flows from foyer through dining room to lodge room. A large kitchen with island connects to the breakfast nook. The master suite occupies the right side with private bath access and covered deck.
Floor Plan

The basement level includes a large garage slab and future expansion areas. Future bedrooms 4 and 5 occupy the upper left corner with shared bathroom access. A future billiard room and theater anchor the center. The future craft room sits adjacent to the garage. Storm shelter provides safety. Multiple covered patios extend outdoor living space.
Open Concept Living with Vaulted Ceilings and Black-Framed Glass Doors
Cream walls complement honey-toned hardwood floors throughout the open layout. Exposed wooden beams accent the vaulted ceiling. Black-framed French doors with divided lights open to an outdoor deck. White cabinetry and decorative backsplash define the kitchen zone.
Formal Dining Room Anchored by Dark Wood Columns and Statement Chandelier

Natural wood beams frame the entryway to a bright dining space featuring a large farmhouse table surrounded by upholstered chairs. Black steel-framed glass doors flood the room with light, while a tiered metal chandelier adds vertical interest above the seating area.
Trend Alert: Exposed structural columns wrapped in stained wood have become a defining element in modern farmhouse interiors. Rather than concealing posts within drywall, designers celebrate them as architectural features that add warmth and visual weight. This approach creates natural room dividers while maintaining sightlines throughout open floor plans.
Kitchen with Quatrefoil Tile Backsplash and Two-Tone Cabinetry

White upper cabinets contrast with a gray island that seats three wooden bar stools. Arabesque-patterned tile in muted green spans the backsplash behind professional-grade appliances. A rectangular chandelier with exposed bulbs hangs above the island, while a circular iron fixture illuminates the adjacent dining area. Dark-framed windows overlook greenery beyond polished hardwood floors.
Primary Bedroom with Mirrored Headboard and Tray Ceiling Detail

Soft gray walls frame a bed dressed in luxurious white linens and quilted cream pillows. A mirrored headboard with dark metal trim reflects light from matching table lamps. Recessed lighting illuminates the tray ceiling. Beyond the white shiplap door, an en-suite bathroom awaits. Light wood flooring and a plush area rug complete the serene retreat.
Freestanding Tub and Walk-In Shower with Blue Accent Tile

A sculptural freestanding tub anchors this spa-inspired bathroom, flanked by matte black plumbing fixtures. Behind it, a frameless glass enclosure reveals a walk-in shower featuring marble-look porcelain walls and a bold navy blue accent band wrapping the upper perimeter. Gray textured rugs soften honey-toned hardwood floors.
Pin It

