
🔥 Would you like to save this?
Specifications
Sq. Ft.: 2,004
Bedrooms: 3
Bathrooms: 2.5
Stories: 1.5
Garage: 2
In order to come up with the very specific design ideas, we create most designs with the assistance of state-of-the-art AI interior design software. Also, assume links that take you off the site are affiliate links such as links to Amazon. this means we may earn a commission if you buy something.
Main Floor Plan

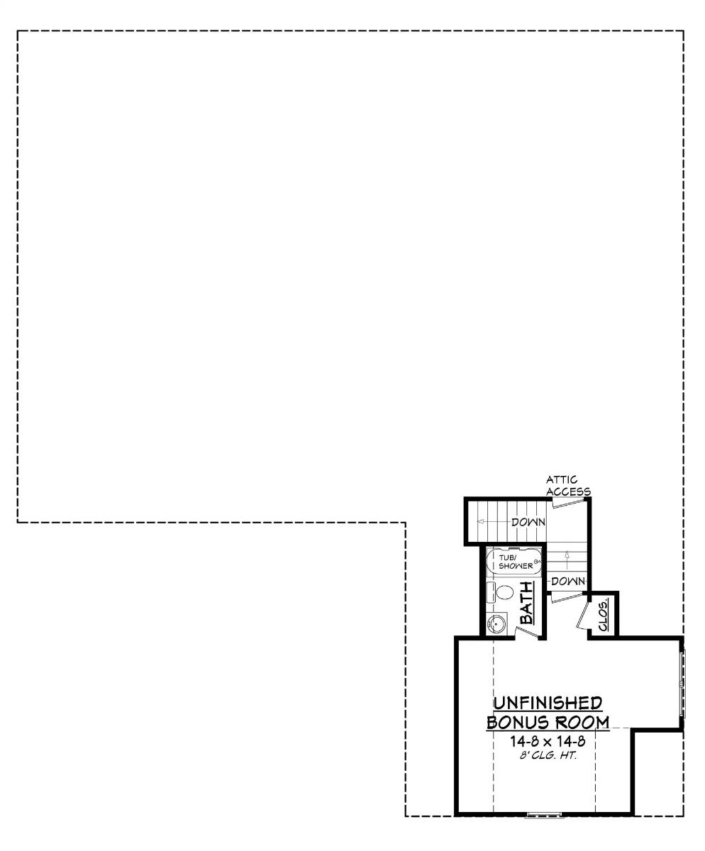
Bonus Floor Plan

Family Room and Kitchen
Dining Room

Kitchen

Kitchen

Primary Bedroom

Bedroom

Primary Bathroom

Primary Bathroom

Bathroom

Bathroom

Bathroom

Bonus Room
Laundry Room

Mudroom

Front Porch

Rear Porch

Rear View

Details
This charming 2,004 sq. ft. home features 3 bedrooms, 2.5 baths, and inviting Craftsman style with brick, siding, and board-and-batten detail. Inside, the split-bedroom design ensures privacy while keeping the main living areas open and bright.
The large kitchen offers abundant counter space, a walk-in pantry, and a sitting bar that’s perfect for casual meals or gatherings. The primary suite is a luxurious retreat with a jet tub, custom shower, dual vanities, and expansive closet space.
Upstairs, the bonus room offers flexibility to serve as a media room, guest bedroom, or play space. Outdoor living is enhanced with a spacious rear porch for relaxing or entertaining.
This home beautifully blends comfort, charm, and functionality, making it ideal for modern family living.
Pin It!

The House Designers Plan 11325
🔥 Would you like to save this?
Tour This 3,084 Sq. Ft. 3 Bedroom Home with Dual Primary Suites – Floor Plan Included
Sq. Ft.: 3,084 | Bedrooms: 3 | Bathrooms: 3.5
Check Out the Floor Plan of This 2,091 Sq. Ft., 3 Bedroom Home Designed for Versatile Living
Sq. Ft.: 2,091 | Bedrooms: 3 | Bathrooms: 2.5
Explore This 3-Bedroom Craftsman Home with a Stunning Stone Facade and Elegant Timber Accents (Includes 3,569 Sq. Ft. Floor Plan)
Sq. Ft.: 3,569 Bedrooms: 3 Bathrooms: 3.5-4.5
Check Out the 1,993 Sq. Ft. Floor Plan of This 3 Bedroom Home with Bonus Room and 3-Car Garage
Sq. Ft.: 1,993 | Bedrooms: 3 | Bathrooms: 2
Discover the Alluring Design of This 3-Bedroom 3,456 Sq. Ft. Craftsman Home with Wet Bar and 4-Car Garage (See the Floor Plan Sketches)
Sq. Ft.: 3,456 | Bedrooms: 3 | Bathrooms: 3.5

