
Would you like to save this?
Specifications
- Sq. Ft.: 3,226
- Bedrooms: 3
- Bathrooms: 2.5
- Stories: 1
- Garage: 3
Main Level Floor Plan

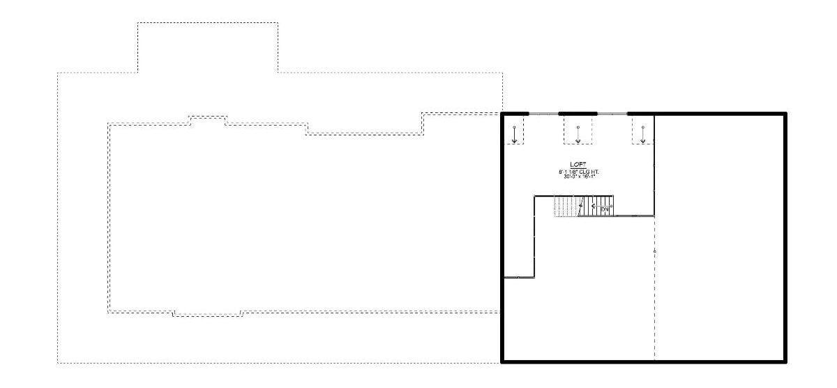
Second Level Floor Plan

๐ฅ Create Your Own Magical Home and Room Makeover
Upload a photo and generate before & after designs instantly.
ZERO designs skills needed. 61,700 happy users!
๐ Try the AI design tool here
Front-Right View

Rear-Right View

Rear View

Rear-Left View

Would you like to save this?
Front-Left View

Living Room

Living Room

Living Room

Living Room and Dining Area

Dining Area

Kitchen

Kitchen

๐ฅ Create Your Own Magical Home and Room Makeover
Upload a photo and generate before & after designs instantly.
ZERO designs skills needed. 61,700 happy users!
๐ Try the AI design tool here
Kitchen

Primary Bedroom

Primary Bedroom

Primary Bathroom

Primary Bathroom

Would you like to save this?
Laundry Room

Bedroom

Bedroom

Details
This mountain ranch blends classic barndominium character with a more refined, residential presence, pairing board-and-batten siding, stone accents, and metal rooflines for a bold yet balanced exterior. A wide, wraparound covered porch anchors the front of the home, setting the tone for relaxed outdoor living and expansive views.
Inside, vaulted ceilings define the main living areas, with the living room, kitchen, and dining space flowing together beneath dramatic cathedral lines. The kitchen is positioned as a true centerpiece, featuring a large island and direct access to the covered rear porch, making indoorโoutdoor entertaining feel effortless. Generous windows throughout the core spaces bring in natural light and reinforce the homeโs open, airy feel.
The primary suite is privately set along the main level and includes a spacious bedroom, a walk-in closet, and a well-appointed bathroom. Secondary bedrooms are grouped nearby with shared bathroom access, offering comfort and convenience without crowding the main living areas. Functional spaces such as the laundry room, mudroom, and storage areas are thoughtfully placed to keep daily routines organized.
A large attached shop and garage extend the homeโs versatility, offering ample space for vehicles, equipment, or hobby use. Above, a loft area provides flexible bonus space that overlooks the level below, maintaining openness while adding room for recreation or storage.
Pin It!

The House Designers Plan THD-11967
